高效速成班:2013年一建《机电工程》全真模考试卷
一级建造师《专业工程管理与实务(机电工程)》
一、单项选择题(共20题,每题1分。每题的备选项中,只有一个最符合题意)
1.定态流动的流体在流动过程中,不随空间位置变化的物理参数是( )。
A.流速 B.流量
C.黏度 D.压力
【正确答案】C
【答案解析】定态流动的流体在流动过程中,流速、流量、压力随空间位置变化而相应变化。
2.在输配电线路勘测定位时,要确定( )。
A.各处杆塔型号
B.杆塔组立方法
C.立杆方式
D.杆身调整程序
【正确答案】A
【答案解析】在输配电线路勘查定位时,要确定各处杆塔型号。
3.当异步电动机接入三相对称交流电时,旋转磁场在( )中产生。
A.定子铁芯
B.定子绕组
C. 转子绕组
D.笼形绕组
答案:B
【解析】旋转磁场是由定子绕组中通以三相对称交流电产生的。
4.大型储罐施工宜采用( )基础。
A.大块式
B.箱式
C.垫层
D.沉井式
答案:C
【试题解析】垫层基础是在基底上直接填砂,并在砂基础外围设钢筋混凝土圈梁挡护填砂,适用于使用后允许产生沉降的结构,如大型储罐。
5.高程控制网的测量方法有( )。
A.导线测量、三角测量 B.水准测量、电磁波测量
C.电磁波测量、三边测量 D.三边测量、水准测量
【正确答案】B
【答案解析】高程测量的方法有:水准测量、电磁波测距三角高程测量。
6.单台仪表的校准点应在仪表全量程范围内均匀选择,一般不应少于( )点。
A.2
B.3
C.4
D.5
【正确答案】D
【答案解析】单台仪表的校准点应在仪表全量程范围内均匀选取,一般不应少于5点。回路试卸寸,仪表校准点不应少于3点。
7.主要功能是采用红外线自动数字显示距离,与普通测量方法不同的是,进行水平距离测量时省去了钢卷尺的测量仪器是( )。
A.光学经纬仪
B.激光准直(铅直)仪
C.光学水准仪
D.全站仪
答案:D
【试题解析】全站仪的主要功能是一种采用红外线自动数字显示距离的测量仪器。它与普通测量方法不同的是,采用全站仪进行水平距离测量时省去了钢卷尺。
8.电梯井道放基准线后的工序是( )。
A.安装导轨
B.配管配线
C.轿厢组装
D.电机安装
答案:A
【试题解析】
电梯安装的施工程序:
1.电梯井道土建工程进行检测,以确定其位置尺寸是否符合电梯制造单位所提供的土建布置图和其他要求。
2.对层门的预留孔洞设置防护栏杆,机房通向井道的预留孔设置临时盖板。
3.井道放基准线后安装导轨等。
4.机房设备安装,井道内配管配线。
5.轿厢组装后安装层门等相关附件。
6.通电空载试运行合格后负载试运行,并检测各安全装置动作是否正常准确。
7.整理各项记录,准备申报准用。
10.有强烈振动的重型机械设备宜采用( )地脚螺栓。
A.粘接 B.固定
C.胀锚 D.活动
【正确答案】D
【答案解析】活动地脚螺栓又称长地脚螺栓,是一种可拆卸的地脚螺栓,用于固定工作时有强烈振动和冲击的重型机械设备。
9.下列设备中,属于机械通用设备的是( )。
A.压缩机
B.桥式起重机
C.锅炉
D.汽轮机
【正确答案】A
【答案解析】机电工程的通用机械设备是指通用性强、用途较广泛的机械设备。一般是指切削设备、锻压设备、铸造设备、输送设备、风机设备、泵设备、压缩机设备等。
10.根据导线连接要求,在跨越公路、铁路、河流、重要建筑物等处,导线接头的数
量应为( )。
A.0个
B.1个
C.2个
D.3个
答案:A
【解析】导线在一个档距内只准有一个接头,但在跨越公路、铁路、河流、重要建筑物、电力线和通信线等处,要求导线和避雷线均不得有接头。
环球网校友情提示:如果您在此过程中遇到任何疑问,请登录环球网校一级建造师频道及考试论坛,随时与广大考生朋友们一起交流!
编辑推荐:
11.工业项目中机械设备的负荷试运转应由( )单位负责。
A.施工
B.建设
C.设备制造
D.设计
答案:B
【解析】除合同另有规定外.负荷试运行方案由建设单位组织生产部门和设计单位,总承包/施工单位共同编制,由生产部门负责指挥和操作。
12.大型原油罐绝热层施工中,依托焊接在罐壁上的保温支架,将绝热材料制品绑紧、
定位的施工方法是( )。
A.拼砌法 B.充填法
C.捆扎法 D.粘贴法
【正确答案】C
【答案解析】捆扎法是把绝热材料制品敷于设备及管道表面,再用捆扎材料将其扎紧、定位的方法。
13.机电工程厂房(车间、站)基础施工中,测量的重点是( )。
A.混凝土杯形基础
B.混凝土柱子基础及柱身
C.平台施工
D.钢柱基础
【正确答案】D
【答案解析】厂房(车间、站)基础施工测量中重点是钢柱基础,钢柱基础的特点是基坑较深,而且基础下面有垫层以及埋设地脚螺栓等。
14.室内隐蔽或埋地的( )在隐蔽前必须做灌水试验。
A.热水管道
B.中水管道
C.给水管道
D.排水管道
答案:D
【试题解析】室内隐蔽或埋地的排水管道在隐蔽前必须做灌水试验,灌水高度应不低于底层卫生器具的上边缘或房屋地面高度。
15.防潮层在室外施工可以在( )时进行。
A.风天
B.雨天
C.曝晒
D.雪天
答案:A
【解析】防潮层施工时的注意事项:室外施工不宜在雨、雪天或夏日曝晒中进行。
设备或管道保冷层和敷设在地沟内管道的保温层,其外表面均应设置防潮层。防潮层施工常采用涂抹法和捆扎法。
16.立式圆筒金属储罐壁板组焊的正确顺序是( )。
A.先焊环缝,再焊纵缝 B.先焊纵缝上段,后焊纵缝下段
C.先焊罐外侧,清焊根后焊罐内侧 D.先焊罐内侧,清焊根后焊罐外侧
【正确答案】C
【答案解析】立式圆筒金属储罐壁板组焊的顺序先焊罐外侧,清焊根后焊罐内侧。
17.综合考虑各种因素,大型储罐选择( )基础较为妥当。
A.联合
B.垫层
C.沉井
D.框架式
【正确答案】B
【答案解析】按材料组成不同,设备基础:素混凝土基础、钢筋混凝土基础和垫层基础,其中垫层基础是在基底上直接填砂,并在砂基础外围设钢筋混凝土圈梁挡护填砂,适用于使用后允许产生沉降的结构,如大型储罐。
18.压力管道安装单位应当在压力管道安装施工前履行告知手续。承担跨省长输管道安装的安装单位,应当向( )履行告知手续。
A.单位所在地的县级以上质量技术监督部门
B.设区的市级质量技术监督部门,
C.省级质量技术监督部门 。
D.国家质检总局
答案:D
【解析】压力管道安装。安装单位应当在压力管道安装施工(含试安装)前履行告之手续。承担跨省长输管道安装的安装单位,应当向国家质检总局履行告之手续;承担省内跨市长输管道安装的安装单位,应当向省级质量技术监督部门履行告之手续;其他压力管道的安装单位,应当向设区的市级质量技术监督部门履行告之手续。
19.焊缝外观检验时,用焊接检验尺测量焊缝的( )。
A.余高、凹陷、裂纹、错12 B.余高、错口、凹陷、焊瘤
C.错口、气孔、裂纹、焊瘤 D.余高、焊瘤、夹渣、咬边
【正确答案】B
【答案解析】用焊接检验尺测量焊缝余高、焊瘤、凹陷、错边等。
20.管道法兰、焊缝及其他连接件的设置应( )。
A.便于检修 B.紧贴墙壁
C.靠近楼板 D.紧贴管架
【正确答案】A
【答案解析】管道法兰、焊缝及其他连接件的设置应便于检修。
环球网校友情提示:如果您在此过程中遇到任何疑问,请登录环球网校一级建造师频道及考试论坛,随时与广大考生朋友们一起交流!
编辑推荐:
二、多项选择题(共10题,每题2分。每题的备选项中,有2个或2个以上符合题意,至少有1个错项。错选,本题不得分;少选,所选的每个选项得0.5分)
21.碳质量分数含量小于2%的黑色金属有( )。
A.生铁 B.低碳钢
C.中碳钢 D高碳钢
E.重金属
【正确答案】BCD
【答案解析】碳质量分数含量小于2%的黑色金属分为了高、中、低碳钢。
22.电站汽轮机主要由( )等组成。
A.汽轮机本体
B.蒸汽系统设备
C.凝结水系统设备
D.送引风设备
E.空气预热器
【正确答案】ABC
【答案解析】电站汽轮机主要由汽轮机本体设备,以及蒸汽系统设备、凝结水系统设备、给水系统设备和其他辅助设备组成。
23.静设备的性能主要由其功能来决定,其主要作用有( )。
A.均压
B.交换
C.贮运
D.反应
E.过滤
答案:ABDE
【解析】静置设备的性能主要由其功能来决定,其主要作用有:贮存、均压、交换、反应、过滤等。静设备是置于基础上且不能移动的设备,除少数有搅拌装置外,很少有运转部件,因其不能作贮运工具,所以这题的干扰项是显而易见的。
24.《特种设备安全监察条例》规定,必须经检验检测机构进行监督检验的是特种设备制造过程或( )过程,未经监督检验合格的不得出厂或者交付使用。
A.安装
B.试验
C.生产运行
D.改造
E.重大维修
答案:ADE
【解析】监督检验属于强制性的法定检验,是指在特种设备制造或安装、改造、重大维修过程中,在单位自检合格的基础上,由检验检测机构(监督检验的主体)按照安全技术规范(监督检验的依据),对上述过程(监督检验的对象)进行的验证性检验,“安全技术规范”指经国务院特种设备安全监督管理部门制订并公布的安全技术规范。
25.吊装方案编制的主要依据有( )。
A.规程规范 B.合同条款
C 被吊装设备的设计文件 D.施工组织设计
E.工程进度计划
【正确答案】ACD
【答案解析】吊装方案编制的主要依据:有关规程、规范;施工组织总设计;被吊装设备(构件)的设计图纸及有关参数、技术要求等;施工现场情况,包括场地、道路、障碍等。
26.空调与通风系统调试时,主要考核的设计指标有( )。
A.空气湿度
B.相对湿度
C.气流速度
D.噪声
E.空气含氧量
【正确答案】ABCD
【答案解析】系统调试主要考核室内的空气温度、相对湿度、气流速度、噪声或空气的洁净度能否达到设计要求,是否满足生产工艺或建筑环境要求,防排烟系统的风量与正压是否符合设计和消防的规定。
27.金属储罐的浮顶及内浮顶升降试验合格标准有( )。
A.浮顶升降平稳
B.导向机构、密封装置无卡涩现象
C.浮顶无异常变形
D.扶梯转动灵活
E.浮顶与液面接触部分无渗漏
答案:A、B、D、E
【试题解析】浮顶及内浮顶升降试验合格标准:浮顶升降平稳;导向机构、密封装置及自动通气阀支柱无卡涩现象;扶梯转动灵活;浮顶及其附件与罐体上的其他部分无干扰;浮顶与液面接触部分无渗漏。
28.注册建造师的签章文件类别包括( )等类管理文件。
A.项目部行政管理
B.施工进度管理
C.合同管理
D.质量管理
E.安全管理
答案:BCDE
【试题解析】机电安装工程、电力工程和冶炼工程的签章文件类别均分为7类管理文件,即:施工组织管理;施工进度管理;合同管理;质量管理;安全管理;现场环保文明施工管理;成本费用管理等。石油化工工程是6类,其中安全管理和现场环保文明施工管理,合并为一个类别。
29.在5℃~10℃气温条件下仍可用于施工的耐火材料有( )。
A.黏土结合耐火浇注料 B.水泥耐火浇注料
C.水玻璃耐火浇注料 D.耐火泥浆
E.耐火喷涂料
【正确答案】BDE
【答案解析】在5℃~10℃气温条件下仍可用于施工的耐火材料有:水泥耐火浇注料、耐火泥浆、耐火喷涂料。
30.建筑物的共用接地体可为( )所共用。
A.防雷接地
B.工作接地.
C.保护接地
D.屏蔽接地
E.虚拟接地
答案:ABCD
【试题解析】整个建筑物的接地系统(体)可能为防雷接地、工作接地、保护接地、抗干扰接地等所共用,也可能分别设置。
环球网校友情提示:如果您在此过程中遇到任何疑问,请登录环球网校一级建造师频道及考试论坛,随时与广大考生朋友们一起交流!
编辑推荐:
三、案例分析题(共5题,(一)、(二)、(三)题各20分,(四)、(五)题各30分)
(一)背景资料
背景资料:某机电安装公司具有压力容器、压力管道安装资格,通过招投标承接一高层建筑机电安装工程,工程内容包括给水排水系统、电气系统、通风空调系统和一座氨制冷站。项目部针对工程的实际情况编制了《施工组织设计》和《氨气泄漏应急预案》。《施工组织设计》中,针对重80t、安装在标高为20m的冷水机组,制订了租赁一台300t履带式起重机吊装就位的方案。《氨气泄漏紧急预案》中规定了危险物质信息及对紧急状态的识别、可依托的如消防和医院等社会力量的救援程序、内部和外部信息交流的方式和程序等。
在工程施工中,发生了以下事件:
事件1:出租单位将运至施工现场的300t履带式起重机安装完毕后,施工单位为了赶工期,立即进行吊装,因为未提供相关资料被监理工程师指令停止吊装。
事件2:对工作压力为1.6MPa氨制冷管道和金属容器进行检查时,发现容器外壳有深4mm的长条形机械损伤,建设单位委托安装公司进行补焊处理。
事件3:项目部用干燥的压缩空气对氨制冷系统进行强度试验后,即进行抽真空充氨试运转。
问题:
1.氨制冷站施工前应履行何种手续?
2.安装公司对容器补焊处理是否合法?说明理由。
3.事件1吊装作业前还应进行什么工作?应提供哪些资料?
4.项目部在氨制冷系统强度试验后即进行试运转是否妥当?说明理由。
5.项目部所编制的应急预案缺少哪些内容?
【答案解析】
1.手续:将拟安装的压力容器、压力管道安装情况书面告知(1分)直辖市或者设区的市的特种设备安全监督管理部门(1分)。
2. 安装公司对补焊处理不合法(1分),理由:因为安装公司不具备压力容器的制造或现场组焊资质(2分)。
3.出租单位将起重机现场安装完毕后应组织验收(2分)。
应提供的资料:产品合格证(1分)、备案证明(1分)、吊车司机上岗证(1分)等。
4. 试运转不可行(1分),因为氨制冷系统管道是输送有毒流体的管道(2分)强度试验后,还要进行泄露性试验(2分)。
5.缺少的内容包括:项目部应急工作的组织及相应职责(1分);发生事故时应采取的有效措施(1分);应急避险的行动程序(撤离逃生路线)(2分);相关人员的应急培训程序(1分)。
环球网校友情提示:如果您在此过程中遇到任何疑问,请登录环球网校一级建造师频道及考试论坛,随时与广大考生朋友们一起交流!
编辑推荐:
(二)背景资料
背景资料:某机电安装工程公司通过公开招标承接了一小区机电工程总承包项目,中标价8000万元,工期270天。承包范围包括设备和材料采购、安装、试运行。招标文件规定,为满足设计工艺要求,建设单位建议安装公司将该工程机械设备和电气设备分别由A、B制造单位供货并签订合同,设备暂估价4200万元,在工程竣工后,以实际供货价结算。合同约定:总工期为277天,双方每延误工期1天,罚款5000元,提前1天奖励5000元;预付款按中标价25%支付,预付款延期付款利率按每天1960计算。
施工过程中发生了以下事件:
事件1:预付款延期支付30天,致使工程实际开工拖延5天。
事件2:因大型施工机械进场推迟3天,进场后又出现故障,延误工期4天,费用损失3万元。
事件3:由于锅炉房蒸气出口处设计变更,造成安装公司返工,返工费2万元,延误工期2天;因蒸气输送架空管道待图延期5天。
事件4:在自动化仪表安装时,发现电动执行机构的转臂不在同一平面内动作,且传动部分动作不灵活,有空行程和卡阻现象。经查,系B制造单位供货质量问题,安装公司要求B制造单位到现场进行修理、更换,耽误工期2天。
事件5:锅炉试运行时,监理工程师发现,安装公司未按技术规程要求进行调试,只有10%的安全阀进行了严密性试验,存在较大的质量、安全隐患,随即签发了工程暂停令,要求安装公司整改。安装公司整改后被指令复工。
问题:
1.该工程项目目标工期应为多少5c?说明理由。
2.事件1一事件4发生后,安装公司可否向建设单位提出索赔?分别说明理由。
3.纠正锅炉安全阀严密性试验的不妥之处。
4.安装公司进行设备采购时,重点应考虑哪几方面问题?
5.计算建设单位实际应补偿安装公司的费用,按事件分别写出计算步骤。
【答案解析】
1.(本小题3分)
工期目标应为277天(1分)
理由:按照合同文件的解释顺序,合同条款与招标文件在内容上有矛盾时,应以合同条款为准(2分)。
2.(本小题8分)
事件1可以提出索赔。
理由:工期预付款延期支付合同约定,属建设单位责任,建设单位应向安装公司支付延期付款利息,同时赔偿工期损失(2分)。
事件2不可以提出索赔。
理由:大型机械推迟进场,施工机械出现故障,是安装公司自身责任(2分)。
事件3可以提出索赔。
理由:是建设单位原因造成的,可以提出相应的工期和费用索赔(2分)。
事件4不可以提出索赔。
理由:虽是建设单位建议由B制造单位供货,但是安装公司与B制造单位签订的合同(2分)。
3.(本小题4分)
锅炉安全阀按规定应100%进行严密性试验(2分),锅筒和过热器的安全阀在锅炉蒸气进行严密性试验后,必须进行最终的调整(1分),调整检验合格后,应做标记(1分)。
4.(本小题6分)
重点考虑的问题是:
(1)考查工厂取得的资格证书、装备和技术具备的制造能力,保证产品的质量(1分);
(2)交货期、支付及支付条件,执行合同信誉(1分);
(3)编制设备监造大纲,明确设备监造的主要技术内容(1分);
(4)派有经验、有资格的相应专业技术人员到制造厂现场进行监造工作(1分);
(5)明确设备的包装、运输、交付规定及具体内容(2分)。
5.(本小题9分)
建设单位应补偿安装公司总费用为65万元。(1分)
按事件分别计算:
(1)事件1延期付款利息:8000×25%×10%×30=60(万元)(1分)
工期赔偿费用:0.5×5=2.5(万元)(1分)
(2)事件2罚款:0.5×4=2(万元)(1分)
(3)事件3返工费:2(万元)(1分)
工期赔偿费:0.5×(2+5)=3.5(万元)(1分)
(4)事件4罚款:0.5×2=1(万元)(1分)
故:安装公司应得到补偿费用:60+2.5-2+2+3.5-1=65(万元)(2分)
环球网校友情提示:如果您在此过程中遇到任何疑问,请登录环球网校一级建造师频道及考试论坛,随时与广大考生朋友们一起交流!
编辑推荐:
(三)背景资料
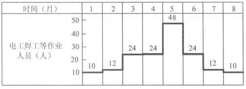
背景资料:某施工单位承接一高层建筑的泛光照明工程。建筑高度为180m,有3个透空段,建筑结构已完工,外幕墙正在施工。泛光照明由LED灯(55W)和金卤灯(400W)组成。LED灯(连支架重100kg)安装在幕墙上,金卤灯安装在透空段平台上,由控制模块(256路)进行场景控制。施工单位依据合同、施工图、规范和幕墙施工进度计划等编制了泛光照明的施工方案,施工进度计划见表1(细实线),劳动力计划见表2。
方案中LED灯具的安装,选用吊篮施工,吊篮尺寸为6000×450×1180mm,牵引电动机功率为1.5kWX2,提升速度为9.6m/min,载重630kg(载人2名)。按进度计划,共租赁4台吊篮。
因工程变化,建筑幕墙4月底竣工,LED灯具的安装不能按原进度计划实施,施工单位对LED灯和金卤灯的安装计划进行了调整,见表1(粗实线)。调整后的LED灯安装需租赁6台吊篮,作业人员增加到24人,施工单位又编制了临时用电施工组织设计。

问题
1.吊篮施工方案中应制订哪些安全技术措施和主要的应急预案?
2.泛光照明施工进度计划的编制应考虑哪些因素?
3.绘出进度计划调整后的劳动力计划,并说明应如何控制劳动力成本。
4.计划调整后,为什么要编制临时用电施工组织设计?
【答案解析】
1. 应制订高处作业安全技术措施(1分),施工机械安全技术措施(1分),施工用电安全技术措施(1分),高处作业时吊篮发生故障的应急预案(2分)。
2.应考虑幕墙竣工时间对LED灯的安装限制和影响(2分),LED灯和金卤灯安装在施工中可以平衡调剂(2分),施工人员和施工机械在工地连续均衡施工(2分)。
3.调整劳动力计划(3分)

劳动力成本控制:减少作业人员进出场时间(1分),严格劳动
定额管理(1分),提高作业人员技术素质(1分)。
4 因为租赁吊篮(1.5KW×2)6台(1分),临时用电设备大于5台(2分),所以要编制临时用电施工组织设计。
环球网校友情提示:如果您在此过程中遇到任何疑问,请登录环球网校一级建造师频道及考试论坛,随时与广大考生朋友们一起交流!
编辑推荐:
(四)背景资料
背景资料:A公司以EPC交钥匙总承包模式中标非洲北部某国一机电工程项目,中标价2.5亿美元。合同约定,总工期36个月,支付币种为美元。设备全套由中国制造,所有技术标准、规范全部执行中国标准和规范。工程进度款每月10前按上月实际完成量支付,竣工验收后全部付清。工程进度款支付每拖欠1d,业主需支付双倍利息给A公司。工程价格不因各种费率、汇率、税率变化及各种设备、材料、人工等价格变化而作调整。施工过程中发生下列事件。
事件1:A公司因(1)当地发生短期局部战乱,造成工期延误30d,直接经济损失30万美元;(2)原材料涨价,增加费用150万美元;(3)所在国劳务工因工资待遇罢工,工期延误5d,共计增加劳务工工资50万美元;(4)美元贬值,损失人民币1200万元;(5)进度款多次拖延支付,影响工期5d,经济损失(含利息)40万美元;(6)所在国税率提高,税款比原来增加50万美元;(7)遇百年一遇大洪水,直接经济损失20万美元,工期拖延10d。事件2:中央控制室接地极施工时,A公司以镀锌角钢作为接地极,遭到业主制止,要求用铜棒作接地极,双方发生分歧。
事件3:负荷试运行时,出现暂短停机,粉尘排放浓度和个别设备噪声超标,经修复、改造和反复测试,各项技术指标均达到设计要求,业主及时签发竣工证书并予以结算。
【问题】
1.A公司中标的工程项目包含哪些承包内容?
【答案解析】A公司中标的工程项目包含的承包内容:全部设计(1.5分)、设备及材料采购
(1.5分)、土建及安装施工(1分)、试运转直至投产运行(1分)。
2.A公司除自身的风险外还有哪些风险?
【答案解析】A公司除自身的风险外还有的风险:(1)材料设备风险(1分);(2)人员风险(1分);(3)组织协调风险(1分);(4)政治及社会风险(1分);(5)自然环境风险(1分);(6)经济风险(1分)。
3.针对事件1,计算工期索赔和费用索赔。
【答案解析】工期索赔=30+5+10=45(d)(2.5分)。
费用索赔=40万美元(2.5分)。
4.业主提出用铜棒代替镀锌角钢的要求是否合理?说明理由。可怎么协调处理。
【答案解析】业主提出用铜棒代替镀锌角钢的要求不合理(2分)。理由:合同计价方式为EPC,且合同规定所有标准规范执行中国标准,A公司用镀锌角钢作为接地极符合中国标准的规范要求,业主提出的质量标准高于合同标准(2分)。协调处理办法:应按设计变更程序处理(2分)。
5.简述机电设备负荷试运行应达到的条件。
【答案解析】机电设备负荷试运行应达到的条件。
(1)工程中间交接完成(1分)。
(2)联动试运行已完成(1分)。
(3)各项生产管理制度已落实、岗位分工明确,各工种人员经培训合格上岗,已掌握要领,会排除故障(1分)。
(4)经批准的负荷试运行方案已向生产人员交底,事故处理应急方案已经制订并落实(1分)。
(5)保运工作已落实,备品备件齐全,供排水、供电、仪表控制已平稳、正常运行,确保连续稳定供应(1分)。
(6)原材料、燃料、化学药品、润滑油(脂)等,已按设计文件和试运行方案规定的规格数量准备齐全,并能确保连续稳定供应(1分)。
(7)环保、安全、消防、急救系统已完善,现场保卫、生活后勤服务已落实(1分)。
(8)通信联络系统、储运系统、运销系统、生产调度系统运行正常可靠。试运行指导人员和老师已到现场(1分)。
环球网校友情提示:如果您在此过程中遇到任何疑问,请登录环球网校一级建造师频道及考试论坛,随时与广大考生朋友们一起交流!
编辑推荐:
(五)背景资料
北方某石油化工公司投资建设一蜡油深加工工程,经招标,由A施工单位总承包。该工程的主要工程内容包括2台大型加氢裂化反应器的安装,高压油气工艺管道安装、分体到货的压缩机组安装调试等静、动设备安装工程、管道安装工程以及土建工程、电气工程、自动化仪表安装工程等。其中,A施工单位将单位工程压缩机厂房及其附属机电设备、设施分包给B建筑工程公司。蜡油工程的关键静设备2台加氢裂化反应器,各重300t,由制造厂完成各项检验试验后整体出厂,A单位现场整体安装。压缩机厂房为双跨网架顶结构,房顶有一台汽液交换设备。B建筑单位拟将网架顶分为4片,每片网架重12t,在地面组装后采用滑轮组提升、水平移位的方法安装就位;房顶汽液交换器重量10t,采用汽车起重机吊装。
合同要求该工程2009年9月开工,2010年6月30日完工。为了加快工程进度,业主要求,有条件的工程,冬季不停止施工作业。
为了保证工程顺利进行,A施工单位编制了静设备安装施工方案、动设备安装调试施工方案、管道组对焊接方案和电气、自动化仪表安装工程施工方案。B建筑施工单位编制了压缩机厂房土建工程施工方案。
问题:
(1)针对本工程,A施工单位和B建筑工程公司各应编制何种施工组织设计?
(2)A施工单位和B建筑工程公司除编制背景材料中所列的施工方案外,至少还应编制哪些主要施工方案?
(3)施工方案一般包括哪些内容?
(4)为完成本工程的安装任务,A施工单位至少应具有哪些特种设备安装资格?说明理由。
(5)分析说明B建筑工程公司分包的工程中,有哪些方案属于危险性较大的专项工程施工方案?这些方案应如何进行审核和批准?
答案与解析:
答案:
(1) A施工单位应编制蜡油深加工工程施工组织总设计。(2分)B建筑工程公司应编制单位工程(压缩机厂房工程)施工组织设计。(2分)
(2) A施工单位至少还应编制:大型设备(反应器)吊装施工方案(1分)、管道清洗和试验方案(1分)、无损检测方案(1分)、单机试运行方案(1分)、冬期施工方案(1分)。
B建筑工程公司至少还应编制:网架吊装安装施工方案(1分)、汽液交换器吊装施工方案(1分)、高处作业施工方案(1分)。
3) 施工方案一般内容包括:工程概况、编制依据、施工程序、施工方法(含技术要求和质量标准)、进度计划、资源配置计划、安全技术措施、质量管理措施、施工平面布置等。(4分
4) A施工单位至少应具备GCl级压力管道安装资格。(2分)本工程的高压油气工艺管道属压力管道的工业管道GCl级,应具有该级别压力管道安装资格。(2分)大型加氢裂化反应器属于压力容器,从事压力容器整体就位和整体移位安装,安装单位应取得《特种设备安装改造维修许可证》1级许可资格,但取得GCl级压力管道安装许可资格的单位,从事1级许可资格中的压力容器安装工作,不需要另取压力容器安装许可资格。(3分)
(5) 网架吊装安装施工方案、汽液交换器吊装施工方案属于危险性较大的专项工程施工方案,(2分)其中网架吊装安装施工方案中,网架吊装是采用非常规起重设备、方法,且单件起吊重量在100kN(相当于10t)及以上的起重吊装工程,属于超过一定规模的危险性较大的专项工程。(2分)
汽液交换器吊装施工方案由B建筑单位技术部门组织审核,单位技术负责人签字,然后报监理单位,由项目总监理工程师审核签字。网架吊装安装施工方案还应由总承包A施工单位组织召开老师论证会。(3分)
环球网校友情提示:如果您在此过程中遇到任何疑问,请登录环球网校一级建造师频道及考试论坛,随时与广大考生朋友们一起交流!
编辑推荐:
最新资讯
- 【免费领取】一级建造师考试基础自测卷,备考必备!2025-11-03
- 考生速进!2026年一建备考,好用的刷题APP是哪个?2025-10-21
- 别错过!8月30日9点一建决赛圈等你来考2025-08-30
- 别错过!2025年一级建造师黄金AB卷免费领取啦2025-08-11
- 提分必备!2025年一建《建设工程经济》经典100题免费下载2025-07-26
- 免费下载!2025年一级建造师《工程法规》经典100题,助你冲刺提分2025-07-23
- 备考必刷!2025年一级建造师项目管理经典100题免费下载2025-07-23
- 一级建造师题目讲解视频:提高价值的途径2025-07-17
- 一级建造师题目解析视频:阀门安装前阀门搬运的正确做法2025-07-16
- 备考必看!免费获取2025年新版一级建造师经典100题2025-07-07