2015年一级建造师《建筑工程》预习试卷二
【摘要】环球网校一级建造师频道,为方便各位一级建造师考生更好的备考一级建造师考试,特地整理一级建造师考试模拟试题,并附解析与参考答案,本文为2015年一级建造师《建筑工程》预习试卷二;希望各位一级建造师考生通过模拟试题的方式掌握考点。
最新推荐: 一级建造师?精彩授课视频免费学习
课程推荐: 2015年招生方案
一、单项选择题(共20题,每题1分。每题的备选项中,只有1个最符合题意。)
1.下列关于梁中钢筋的保护层厚度的说法,正确的是( )。
A.主筋表面至梁表面的距离
B.主筋形心至梁表面的距离
C.箍筋表面至梁表面的距离
D.箍筋形心至梁表面的距离
2.承受均布荷载的简支钢梁,其跨中挠度ƒ=5qι4/384EI,图中截面(2)为叠合梁,假定叠合梁上下梁间无任何约束且叠合面无摩擦力,则采用截面(1)的挠度ƒ1和采用截面(2)的挠度ƒ2的关系为( )。

A.ƒ2=ƒ1
B.ƒ2=2ƒ1
C.ƒ2=4ƒ1
D.ƒ2=8f1
3.房屋建筑筒中筒结构的内筒,一般由( )组成。
A.电梯间和设备间
B.楼梯间和卫生间
C.设备间和卫生问
D.电梯间和楼梯间
4.表示热轧光圆钢筋符号的为( )。
A.HPB300
B.HRB335
C.HRB400
D.RRB400
5.钢筋中的有害元素是( )。
A.锰
B.硅
C.氧
D.铁
6.哈尔滨某建筑屋面防水卷材选型,最宜选用的高聚物改性沥青防水卷材是( )。
A.沥青复合胎柔性防水卷材
B.自粘橡胶改性沥青防水卷材
C.塑性体(APP)改性沥青防水卷材
D.弹性体(SBS)改性沥青防水卷材
7.根据土方开挖的难易程度不同,可将土石分为( )个大类。
A.四
B.六
C.八
D.十
8.关于模板工程设计主要原则的说法,正确的是( )。
A.实用性、安全性、经济性
B.适用性、安全性、经济性
C.耐久性、安全性、经济性
D.实用性、安全性、耐久性
9.大体积混凝土应优先考虑水泥性质中的( )。
A.强度
B.变形
C.水化热
D.体积安定性
10.砖砌体工程中可设置脚手眼的墙体或部位是( )。
A.120mm厚墙
B.砌体门窗洞口两侧450mm处
C.独立柱
D.宽度为800mm的窗间墙
11.当屋面坡度达到( )时,卷材必须采取满粘和钉压固定措施。
A.32
B.10%
C.15%
D.25%
12.关于吊顶工程的说法,正确的是( )。
A.吊顶工程的木龙骨可不进行防火处理
B.吊顶检修口可不设附加吊杆
C.明龙骨装饰吸声板采用搁置法施工时,应有定位措施
D.安装双层石膏板时,面层板与基层板的接缝应对齐
13.属于流水施工中空间参数的是( )。
A.流水强度
B.操作层数
C.施工队数
D.施工过程数
14.甲施工企业总承包了一个高档酒店工程,将其中的大堂装修工程分包给符合资质条件的乙装饰公司,分包合同写明:“大堂装修工程质量完全由乙方负责”,现大堂出现装修施工质量问题,关于责任划分正确的是( )。
A.甲企业承担全部责任
B.乙企业承担全部责任
C.甲企业和乙企业承担连带责任
D.按甲企业、乙企业签订合同中的约定承担责任
15.某工程施工过程中,3工人在大钢模修整场地休息,大风吹倒大钢模砸向工人导致3人当场死亡,相关直接经济损失约560余万元,此事故属于( )。
A.特别重大事故
B.重大事故
C.较大事故
D.一般事故
16.施工现场进行一级动火作业前,应由( )审核批准。
A.安全监理工程师
B.企业安全管理部门
C.项目负责人
D.项目安全管理部门
17.按照《招标投标法》规定,招标人在对某一投标人就招标文件所提出的疑问作出进一步澄清时,须( )。
A.书面通知所有的投标人
B.书面通知提出疑问的投标人
C.口头通知提出疑问的投标人
D.口头通知所有的投标人即可
18.需在15天内完成2700t钢筋制作任务,每个工人每日工效为4.5t,则钢筋制作劳动力至少投入( )人。
A.20
B.40
C.60
D.180
19.良好行为记录信息公布期限一般为( )。
A.6个月
B.1年
C.2年
D.3年
20.关于建筑地面检查的说法,正确的是( )。
A.防水隔离层应采用蓄水方法,蓄水深度最浅处不得小于20mm
B.防水隔离层应采用淋水方法,淋水时间不得少于24h
C.建筑地面的面层应采用泼水方法
D.建筑地面的面层应采用蓄水方法
二、多项选择题(共10题,每题2分。每题的备选项中,有2个或2个以上符合题意,至少有一个错项。错选,本题不得分;少选,所选的每个选项得0.5分)
21.混凝土的耐久性包括( )等指标。
A.抗渗性
B.抗冻性
C.和易性
D.碳化
E.粘结性
22.有抗渗要求的混凝土优先选用的常用水泥有( )。
A.矿渣水泥
B.火山灰水泥
C.普通水泥
D.复合水泥
E.硅酸盐水泥
23.模板的拆除顺序一般为( )。
A.先支先拆,后支后拆
B.后支先拆,先支后拆
C.先拆非承重部分,后拆承重部分
D.先拆承重部分,后拆非承重部分
E.先下后上,先内后外
24.大体积混凝土的浇筑方案主要有( )等方式。
A.全面分层
B.分段分层
C.斜面分层
D.竖直分层
E.交错分层
25.基坑(槽)验槽时,应重点观察( )等部位。
A.承重墙下
B.柱基
C.横墙下
D.墙角
E.纵横墙交接处
26.属于工程质量事故报告内容的有( )。
A.事故发生的时间、地点、工程项目名称、工程各参建单位名称
B.事故发生的简要经过、伤亡人数和初步估计的直接经济损失
C.事故的初步原因
D.事故发生后采取的措施及事故控制情况
E.事故发生的原因和事故性质
27.幕墙工程验收时,应检查的资料有( )。
A.幕墙工程竣工图
B.建筑设计单位对幕墙工程设计的确认文件
C.幕墙工程所用各种材料的合格证书等质量证明资料
D.施工总平面布置图
E.结构计算书、设计说明
28.下列各项检查评分表中,没有设置保证项目的有( )。
A.安全管理检查评分表
B.文明施工检查评分表
C.高处作业检查评分表
D.施工用电检查评分表
E.施工机具检查评分表
29.根据《招标投标法》的规定,下列( )项目可以不进行招标。
A.抢险救灾工程
B.利用扶贫资金以工代赈工程
C.国家秘密工程
D.世界银行贷款工程
E.国外政府援助项目并对招标投标具体条件和程序有专门规定的工程
30.下列工程中,应单独编制安全专项施工方案的情况有( )。
A.采用常规起重设备、方法吊装单件重量5kN的吊装工程
B.地下暗挖工程
C.网架和索膜结构安装工程
D.人工挖孔桩工程
E.开挖深度4.8m的土方开挖工程
三、案例分析题(共5题,(一)、(二)、(三)每题20分,(四)、(五)题各30分)
(一)
背景资料:
某工程由四幢完全相同的砖混住宅楼组成,某建筑公司中标后,施工组织设计中考虑以每个单幢为一个施工流水段组织单位工程流水施工。经测算,各施工过程及流水节拍参数如下:
(1)地下部分

问题:
1.分别指出地下部分、地上部分各自最适合采用的流水施工组织形式,并列式计算各自的流水施工工期。
2.除问题1中采用的流水施工组织形式外还有哪些形式?并简要说明其特点。
3.如果地上、地下均采用最适合的流水施工组织方式,现在要求地上部分与地下部分最大限度地搭接,各施工过程间均没有间歇时间,计算最大限度搭接时间,并给出分析过程。
4.试按第3问的条件绘制流水施工进度计划,并计算整个工程的总工期。
(二)
背景资料:
某办公楼工程,建筑面积18500m2,现浇钢筋混凝土框架结构,筏板基础。该工程位于市中心,场地狭小,开挖土方须外运至指定地点。建设单位通过公开招标方式选定了施工总承包单位和监理单位,并参照《建设工程施工合同(示范文本)》GF一2013一0201签订了施工总承包合同,施工总承包单位进场后按合同要求提交了总进度计划,如下图所示(时间单位:月),并经过监理工程师审查和确认。

合同履行过程中,发生了下列事件:
事件一:施工总承包单位依据基础形式、工程规模、现场和机具设备条件以及土方机械的特点,选择了挖土机、推土机、自卸汽车等土方施工机械,编制了土方施工方案。
事件二:基础工程施工完成后,在施工总承包单位自检合格、总监理工程师签署“质量控制资料符合要求”的审查意见的基础上,施工总承包单位项目经理组织施工单位质量部门负责人、监理工程师进行了分部工程验收。
事件三:当施工进行到第5个月时,因建设单位设计变更导致工作B延期2个月,造成施工总承包单位施工机械停工损失费13000元和该施工机械操作人员窝工费2000元,施工总承包单位提出一项工期索赔和两项费用索赔。
问题:
1.施工总承包单位提交的施工总进度计划的工期是多少个月?指出该工程总进度计划的关键线路(用节点表示)。
2.事件一中,施工总承包单位选择土方施工机械的依据还应有哪些?
3.根据《建筑工程施工质量验收统一标准》GB 50300--2001,事件二中,施工总承包单位项目经理组织基础工程验收是否妥当?说明理由。本工程地基基础分部工程验收还应包括哪些人员?
4.事件三中,施工总承包单位的三项索赔是否成立?并分别说明理由。
(三)
背景资料:
某高校新建一栋办公楼和一栋实验楼,均为现浇钢筋混凝土框架结构。办公楼地下l层、地上19层,建筑檐高82m;实验楼6层,建筑檐高22m。建设单位与某施工总承包单位签订了施工总承包合同。合同约定:(1)电梯安装工程由建设单位指定分包;(2)保温工程的保修期限为10年。
施工过程中,发生了下列事件:
事件一:总承包单位上报的施工组织设计中,办公楼采用1台塔吊、l台外用电梯;在七层楼面设置有自制卸料平台;外架采用悬挑脚手架,从地上2层开始分五次到顶。实验楼采用1台物料提升机;外架采用落地式钢管脚手架。监理工程师按照《危险性较大的分部分项工程安全管理办法》(建质[2009]87 号)的规定,要求总承包单位单独编制与之相关的专项施工方案并上报。
事件二:办公楼外用施工电梯与各楼层连接处搭设卸料通道,与相应的楼层接通后,仅在通道两侧设置了临边安全防护设施。地面进料口处仅设置安全防护门,且在相应位置挂设了安全警示标志牌。监理工程师认为安全设施不齐全,要求整改。
事件三:办公楼电梯安装工程早于装饰装修工程施工完,提前由总监理工程师组织验收,总承包单位未参加。验收后电梯安装单位将电梯工程有关资料移交给建设单位。整体工程完成时,电梯安装单位已撤场。由建设单位组织,监理、设计、总承包单位参与进行了单位工程质量验收。
事件四:总承包单位在提交竣工验收报告的同时,还提交了《工程质量保修书》,其中保温工程保修期按《民用建筑节能条例》的规定承诺保修5年。建设单位以《工程质量保修书》不合格为由拒绝接收。
问题:
1.事件一中,哪些分部分项工程必须单独编制专项施工方案?
2.指出事件二中做法的错误之处,并分别写出正确做法。
3.指出事件三中错误之处,并分别给出正确做法。
4.事件四中,总承包单位、建设单位做法是否合理?本工程保温工程的保修期限应该为多少年?
(四)
背景资料:
某公共建筑工程,建筑面积82000m2,地下三层,地上二十层,层高3.8m,钢筋混凝土框架结构。大堂一至三层中空,大堂顶板为钢筋混凝土井字梁结构,某施工总承包单位承担施工任务。
在工程施工过程中,发生了如下事件:
事件一:开工前,地方建设行政主管部门检查项目施工人员三级教育情况,质询项目经理部的教育内容。施工项目负责人回答:“进行了国家和地方安全生产方针、企业安全规章制度、工地安全制度、工程可能存在的不安全因素四项内容的教育”。受到了地方建设行政主管部门的严厉批评。
事件二:施工总承包单位进场后,采购了Ⅱ级钢筋110t,钢筋出厂合格证明资料齐全。施工总承包单位将同一炉罐号的钢筋组批,在监理工程师见证下,取样复试。复试合格后,施工总承包单位在现场采用冷拉方法调直钢筋,冷拉率控制为3%,监理工程师责令施工总承包单位停止钢筋加工工作。
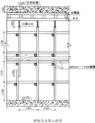
事件三:施工总承包单位根据《建筑施工模板安全技术规范》,编制了《大堂顶板模板工程施工方案》,并绘制了模板及支架示意图,如下所示。监理工程师审查后要求重新绘制。

事件四:拆模后发现梁底的外露面出现麻面、露筋等表面缺陷。监理要求分析原因并提出后续工程的防治措施。
问题:
1.事件一中,指出不属于项目经理部教育的内容,项目经理部教育还应包括哪些内容?
2.指出事件二中施工总承包单位做法的不妥之处,分别写出正确做法。
3.指出事件三中模板及支架示意图中不妥之处相对应的正确做法(至少列出五项)。
4.分析事件四中混凝土表面质量缺陷产生的可能原因(至少列出五项)。
(五)
背景资料:
某公司承建某大学办公科研综合楼项目,在装饰装修阶段,大学城建设单位追加新建校史展览馆,紧临在建办公科研综合楼。总建筑面积2160m2,总造价408万元,工期10个月。屋面设女儿墙,屋面防水材料采用SBS卷材。
考虑到工程较小、某公司也具备相应资质,建设单位经当地建设相关主管部门批准后,未通过招投标直接委托给该公司承建。
展览馆项目设计图纸已齐全,结构造型简单,且施工单位熟悉周边环境及现场条件,甲乙双方协商采用固定总价计价模式签订施工承包合同。
施工过程中发生如下事件:
事件一:考虑到展览馆项目紧临办公科研综合楼,用电负荷较小,且施工组织仅需6台临时用电设备,某公司依据《施工组织设计》编制了《安全用电和电气防火措施》,决定不单独设置总配电箱,直接从综合楼项目总配电箱引出分配电箱。施工现场临时用电设备直接从分配电箱连接供电。项目经理安排了一名有经验的机械工进行用电管理。监理工程师认为不妥,指令整改。
事件二:屋面淋水试验时,发现女儿墙根部漏水,经查,主要原因是转角处卷材开裂,施工总承包单位进行了整改。
事件三:展览馆各阶段验收合格,施工单位于2013年9月18日提交工程验收报告,建设单位于当天投入使用。建设单位以工程质量问题需在使用中才能发现为由,将工程竣工验收时间推迟到11月18日,与综合楼一并进行验收,并要求《工程质量保修书》中竣工日期以11月18日为准。施工单位对竣工日期提出异议。
问题:
1.大学城建设单位将展览馆项目直接委托给某公司是否合法?说明理由。
2.该工程采用固定总价合同模式是否妥当?给出固定总价合同模式适用的条件?除背景材料中固定总价合同模式外,常用的合同计价模式还有哪些(至少列出三项)?
3.指出事件一中校史展览馆工程临时用电管理中的不妥之处,并分别给出正确做法。
4.试从施工的角度分析事件二中女儿墙卷材根部开裂的原因,并写出治理的措施。
5.事件二中,施工单位对竣工日期提出异议是否合理?说明理由。写出本工程合理的竣工日期。
一、单项选择题
1.C;2.C;3.D;4.A;5.C;6.D;7.C;8.A;9.C;10.B
11.D;12.C;13.B;14.C;15.C;16.B;17.A;18.B;19.D;20.C
二、多项选择题
21.ABD;22.BC;23.BC;24.ABC;25.ABD;
26.ABCD;27.BCE;28.CE;29.ABCE;30.BCDE
三、案例分析题
(一)
1.【参考答案】
(1)地下部分适合采用等节奏流水施工
施工过程:N=4
施工段数:M=4
流水步距:K=2
工期T地下=(M+N-1)×K=(4+4-1)×2=14(周)。
(2)地上部分适合采用成倍节拍流水施工(异节奏流水施工)
施工过程:N=3
施工段数:M=4
流水步距:K=min(4、4、2)=2
专业队数:b1=4/2=2
b2=4/2=2
b3=2/2=1
总队数N?=2+2+1=5
工期T上=(M+N?-1)×K=(4+5-1)× 2=16(周)。
【考点解析】
首先审题,地下部分四个施工过程的流水节拍相等,均为2周,故最适合组织等节奏流水施工。地上部分三个施工过程的流水节拍不相等,可组织异节奏流水施工,也可组织无节奏流水施工。
仔细观察,地上部分的三个施工过程其流水节拍分别为4、4、2,存在最大公约数2,所以地上部分组织成倍节拍流水施工是最理想的,属异节奏流水施工。
等节奏流水施工的工期=(M+N-1)×K
成倍节拍流水施工的工期=(M+N?-1)×K
M――施工流水段数量;
N――施工过程数量;
N?――施工队数量(成倍节拍流水施工时,施工队数量大于施工过程数量);
K一――流水步距。
2.【参考答案】
除了问题1中等节奏流水施工、异节奏流水施工外,还有无节奏流水施工。
无节奏流水施工的特点:
(1)各施工过程在各施工段的流水节拍不全相等;
(2)相信施工过程的流水步距不尽相等;
(3)专业工作队数等于施工过程数;
(4)各专业工作队能够在施工段上连续作业,但有的施工段间可能有间隔时间。
【考点解析】
问题1中采用了等节奏流水施工、异节奏流水施工,此外还剩下的就是无节奏流水施工这种形式了。
至于无节奏流水施工的特点,无非就是如下四条:
(1)各施工过程在各施工段的流水节拍不全相等;
(2)相信施工过程的流水步距不尽相等;
(3)专业工作队数等于施工过程数;
(4)各专业工作队能够在施工段上连续作业,但有的施工段间可能有间隔时间。
考试出题往往都有比较极端的情形,比如这一知识点,通常要么考无节奏流水施工、要么就是考等节奏流水施工。当然了,成倍节拍流水施工虽然归类到异节奏流水施工里,但其特点和组织方式更像是一种另类的等节奏流水施工。
3.【参考答案】
最大限度搭接时间为剩余三个施工段施工时间:2+2+2=6(周)。
分析:地下部分最后的施工过程为回填土,回填土施工过程在四个流水段上的流水节拍为:2、2、2、2周,其中第一个施工段在第2周末结束后,即开始进入地上部分施工。
【考点解析】
所谓搭接时间,其实就是实施现场俗称的“打时间差”的概念。针对本案例,如地下部分施工完毕后再开始地上部分施工,其总计施工时间为基准值。如果在地下部分施工过程中某时点提前开始地上部分施工,相当于提前插入地上部分施工,这样就节省了总的施工时间。相对于基准值来说节省的时间就是搭接时间,也就是在地下部分施工完毕时间前提前插入的这一段时间就是最大限度的搭接时间。
由此,本案例中最大限度的搭接时间,应该是第一个施工段地下部分最后一个施工过程完成后,迅速开始此施工段地上部分后续施工。此时其他施工段地下部分仍继续施工,从插入时点至地下部分其他施工段各施工过程全部施工完毕为止的这一段时间即为地下部分、地上部分最大限度的搭接时间。
4.【参考答案】
(1)工程整体施工进度计划如下图:

(2)当按第3问的流水施工组织方式,即第一幢地下工程完成后即插入进行地上工程施工,则总工期应按如下式计算:
T总=T地下+T地上一搭接时间=14+16-6=24(周)
【考点解析】
这是一道典型的进度管理题,有一定的难度。主要考核对流水施工进度计划的绘制方法和流水施工总工期的计算。
在本案例中,地下部分为等节奏流水施工,故专业队数等于施工过程数;地上部分为成倍节奏流水施工,故专业队数大于施工过程数。故工程整体流水施工进度计划图必须按施工队来绘制,而不能按施工过程来绘制。
如果能正确绘制施工进度计划,那总工期的计算就简单了,直接在图上数都能数出来。
当然,按公式计划,那就是:T总=R下+T地上一搭接时间。
(二)
1.【参考答案】
(1)施工总承包单位提交的施工总进度计划的工期是18个月;
(2)该工程总进度计划的关键线路(节点表示):①→②→④→⑥→⑧→⑨→11→12。
【考点解析】
时差可分为总时差和自由时差两种:工作总时差,是指在不影响总工期的前提下,本工作可以利用的机动时间;工作自由时差,是指在不影响其所有紧后工作最早开始的前提下,本工作可以利用的机动时间。
关键工作:是网络计划中总时差最小(或为0)的工作,在双代号时标网络图上,没有波形线的工作即为关键工作。
关键线路:全部由关键工作所组成的线路就是关键线路。关键线路的工期即为网络计划的计算工期。
背景资料中给出的是双代号网络计划,根据时间参数的定义计算网络计划中各工作的时间参数,然后根据总时差判断关键工作和关键线路。

由上表可知,关键工作有:A、C、F、H、K、M、N。全部由关键工作连成的线路则为关键线路,由此,则用节点表示的关键线路为:①→②→④→⑥→⑧→⑨→⑩→11→12。
关键线路的长度就是总工期:3+3+2+3+2+4+1=18(月)。
特别提醒,关键线路上的所有工作肯定都是关键工作(计划工作等于计算工期时,总时差为0的工作;计划工期不等于计算工期时,总时差最小的工作),但并不是网络图中的所有关键工作一定都在关键线路上。
2.【参考答案】
施工总承包单位选择土方施工机械的依据还应有:开挖深度、地质、地下水情况、土方量、运距、工期要求。
【考点解析】
随着建筑业的发展,目前土方开挖已基本实现全机械化作业。土方施工机械的选择,应根据基础形式、工程规模、开挖深度、地质、地下水情况、土方量、运距、现场和机具设备条件、工期要求以及土方机械的特点等合理进行选择,以充分发挥机械效率,节省机械费用,加速施工进度。
3.【参考答案】
施工总承包单位项目经理组织基础工程验收:不妥当;
理由:应由总监理工程师组织地基基础分部工程验收。
本工程地基基础分部工程验收还应参加的人员:总监理工程师(建设单位项目负责人),勘察、设计、施工单位项目负责人,施工单位项目技术、质量负责人,以及施工单位技术、质量部门负责人。
【考点解析】
仔细审题,事件二说了两层意思:一是基础施工完成后,总监理工程师签署了“质量控制资料符合要求”的意见,表示项目现场质量合格,符合验收条件。二是项目经理组织进行地基基础分部工程验收,施工单位质量部门负责人、监理工程师参加。
根据《建筑地基基础工程施工质量验收规范》GB 50202--2002第8.0.3条之规定:地基与基础分部工程验收应由总监理工程师或建设单位项目负责人组织勘察、设计单位及施工单位的项目负责人、技术质量负责人,共同按设计要求和本规范及其他有关规定进行。
在有监理的项目中,分部工程验收通常由总监理工程师组织,这是法定程序。在没有监理角色的项目中,也可以由建设单位项目负责人组织。
根据《建筑工程施工质量验收统一标准》GB 50300--2001第6.0.2条之规定:分部工程应由总监理工师(建设单位项目负责人)组织施工单位项目负责人和技术、质量负责人等进行验收;地基与基础、主体结构分部工程的勘察、设计单位工程项目负责人和施工单位技术、质量部门负责人也应参加相关分部工程验收。
4.【参考答案】
(1)施工机械停工损失费13000元的索赔:成立;
理由:由设计变更引起的,应由建设单位承担责任。
(2)施工机械操作人员窝工费2000元的索赔:不成立;
理由:施工机械操作人员窝工费已包括在施工机械停工损失费中。
(3)延期2个月的工期索赔:不成立;
理由:工作B有2个月的总时差,延长2个月并不会影响总工期。
【考点解析】
仔细审题,事件三描述中明确指出“施工总承包单位提出一项工期索赔和两项费用索赔”,且提问中也明确是三项索赔,则回答时一定也要按照三项分别进行作答。
注意,背景资料里没有涉及施工单位是否在索赔有效时限内提出索赔的问题,故假定为除题干交代的问题外,其他所有条件均符合要求,答题时,切不可假设施工单位如不在索赔有效时限内提出索赔等情况。
国内建筑业内通常都参照《建设工程施工合同(示范文本)》GF一2013―0201签订施工承包合同,考试用书上没有对《建设工程施工合同(示范文本)》GF一2013一020l单独列条目予以详细阐述,但该文本的具体内容直接与合同管理、合同索赔等知识密切相关,请广大考生一定要仔细学习。
特别说明:关于索赔责任的认定与划分,《建设工程施工合同(示范文本)》GF一2013―0201与FIDIC条款存在差别,请考生一定要仔细审题。
关于设计变更导致的索赔,《建设工程施工合同(示范文本)》与FIDIC条款责任认定原则一致:均属建设单位责任范围。
根据《建筑安装工程费用项目组成》(建标E2013]44号)中施工机械使用费的说明,以施工机械台班耗用量乘以施工机械台班单价表示,施工机械台班单价应由下列7项费用组成:
(1)折旧费:指施工机械在规定的使用年限内,陆续收回其原值的费用。
(2)大修理费:指施工机械按规定的大修理间隔台班进行必要的大修理,以恢复其正常功能所需的费用。
(3)经常修理费:指施工机械除大修理以外的各级保养和临时故障排除所需的费用。
包括为保障机械正常运转所需替换设备与随机配备工具附具的摊销和维护费用,机械运转中日常保养所需润滑与擦拭的材料费用及机械停滞期间的维护和保养费用等。
(4)安拆费及场外运费:安拆费指施工机械(大型机械除外)在现场进行安装与拆卸所需的人工、材料、机械和试运转费用以及机械辅助设施的折旧、搭设、拆除等费用;场外运费指施工机械整体或分体自停放地点运至施工现场或由一施工地点运至另一施工地点的运输、装卸、辅助材料及架线等费用。
(5)人工费:指机上司机(司炉)和其他操作人员的人工费。
(6)燃料动力费:指施工机械在运转作业中所消耗的各种燃料及水、电等。
(7)税费:指施工机械按照国家规定应缴纳的车船使用税、保险费及年检费等。
根据常识我们应知道,施工机械停工损失费13000元中已包含了该施工机械的操作人员费用,故再次索赔机械操作人员窝工费2000元不成立。工期索赔的原则有两条:①非施工方原因造成;②该工期的延误必然影响总工期。根据第一问的时间参数表可知,工作B的总时差为2个月,则工作B延期2个月不影响总工期,故工期索赔不成立。
(三)
1.【参考答案】
必须单独编制的专项施工方案有:
(1)土方开挖方案;
(2)塔吊(安装、拆卸)方案;
(3)外用施工电梯、物料提升机(安装、拆卸)方案(也可回答“起重机械设备的安装、拆卸方案”);
(4)悬挑式脚手架(搭设、拆除)方案;
(5)自制卸料平台(搭设、拆除)方案。
【考点解析】
根据《危险性较大的分部分项工程安全管理办法》(建质[2009]87号)的规定,对于达到一定规模、危险性较大的工程,需要单独编制专项施工方案。具体有如下几大类:
(1)基坑支护、降水工程
开挖深度超过3m(含3m)或虽未超过3m但地质条件和周边环境复杂的基坑(槽)支护、降水工程。
(2)土方开挖工程
开挖深度超过3m(含3m)的基坑(槽)的土方开挖工程。
(3)模板工程及支撑体系
1)各类工具式模板工程:包括大模板、滑模、爬模、飞模等工程。
2)混凝土模板支撑工程:搭设高度5m及以上;搭设跨度10m及以上;施工总荷载10kN/m2及以上;集中线荷载15kN/m及以上;高度大于支撑水平投影宽度且相对独立无联系构件的混凝土模板支撑工程。
3)承重支撑体系:用于钢结构安装等满堂支撑体系。
(4)起重吊装及安装拆卸工程
1)采用非常规起重设备、方法,且单件起吊重量在10kN及以上的起重吊装工程。
2)采用起重机械进行安装的工程。
3)起重机械设备自身的安装、拆卸。
(5)脚手架工程
1)搭设高度24m及以上的落地式钢管脚手架工程。
2)附着式整体和分片提升脚手架工程。
3)悬挑式脚手架工程。
4)吊篮脚手架工程。
5)自制卸料平台、移动操作平台工程。
6)新型及异型脚手架工程。
(6)拆除、爆破工程
1)建筑物、构筑物拆除工程。
2)采用爆破拆除的工程。
(7)其他
1)建筑幕墙安装工程。
2)钢结构、网架和索膜结构安装工程。
3)人工挖扩孔桩工程。
4)地下暗挖、顶管及水下作业工程。
5)预应力工程。
6)采用新技术、新工艺、新材料、新设备及尚无相关技术标准的危险性较大的分部公项工并呈,在背景资料中,提到本工程采用有塔吊、外用施工电梯、自制卸料平台、物料提升机、外脚手架(落地式、悬挑式),背景中没提到的,按没有考虑。首先可确定塔吊、自制卸料平台、物料提升机、悬挑脚手架都需要单独编制专项施工方案。
背景资料中给出实验楼建筑檐高22m,通常外架外伸安全高度为1.2~1.5m,架体总高度将达到23.2~23.5m,故本工程的落地式钢管脚手架不需要单独编制专项施工方案。另,背景资料中给出办公楼为地下一层,根据常规设计,其基坑开挖深度应超过3m,故土方开挖也应单独编制专项施工方案。由于背景中未提降水事宜,故在答题时,可不考虑降水。
2.【参考答案】
事件二中错误之处及正确做法分别如下:
(1)错误一:仅设置通道两侧的临边安全防护设施;
正确做法:在各楼层的通道口处应设置(常闭型)防护门。
(2)错误二:地面进料口处仅设置安全防护门;
正确做法:地面进料口处应搭设防护棚。
【考点解析】
首先分析事件二中的安全做法,共分两句话:
(1)与各楼层连接处搭设卸料通道,与相应的楼层接通后,仅在通道两侧设置了临边安全防护设施。
(2)地面进料口处仅设置安全防护门,且在相应位置挂设了安全警示标志牌。
针对施工电梯安全方面的做法存在错误,逐条进行分析:
针对(1),相应规范中规定:在建工程各层与提升机连接处应搭设卸料通道,通道两侧应按临边防护规定设置防护栏杆及挡脚板。各层通道口处都应设置常闭型的防护门。
针对(2),相应规范中规定:地面进料口处应搭设防护棚,防护棚的尺寸应视架体的宽度和高度而定,防护棚两侧应封挂安全立网。防护门只是防护棚的两端,还应增设顶部的硬防护及两侧的防护。
3.【参考答案】
事件三中错误之处及正确做法分别如下:
(1)错误一:电梯工程验收总承包单位未参加;
正确做法:总承包单位应(派人)参加。
(2)错误二:电梯工程有关资料移交给建设单位;
正确做法:应移交给总承包单位。
(3)错误三:单位工程质量验收时只有建设、监理、设计、总承包单位参加(或电梯
安装单位未参加);
正确做法:单位工程质量验收时,(电梯)分包单位也应参加。
【考点解析】
首先分析事件三的说法,共分四句话:
(1)办公楼电梯安装工程早于装饰装修工程施工完,提前由总监理工程师组织验收,总承包单位未参加。
(2)验收后电梯安装单位将电梯工程有关资料移交给建设单位。
(3)整体工程完成时,电梯安装单位已撤场。
(4)由建设单位组织,监理、设计、总承包单位参与进行了单位工程质量验收。
针对(1),相应规范中规定:单位工程有分包单位施工时,分包单位对所承包的工程项目按本标准规定的程度检查评定,总承包单位应派人参加。
针对(2),相应规范中规定:分包工程完成后,应将工程有关资料交总承包单位,再由总承包单位汇总后向建设单位移交。
很明显,第(3)句本身没有问题,为第(4)句的原因说明。
针对(3)、(4),相应规范中规定:待建设单位组织单位工程质量验收时,分包单位负责人也应参加验收。
4.【参考答案】
总承包单位做法:不合理;
建设单位做法:合理;
本工程保温工程保修期限应该是:10年。
【考点解析】
先审题,背景资料中两处提到保温工程保修期:
(1)施工总承包合同中约定保温工程保修期限为10年;
(2)《工程质量保修书》中保温工程保修期限承诺保修5年。
施工总承包单位认为应保修5年,建设单位认为应保修10年,二者必有其一做法不合理。
施工单位的理由:按《民用建筑节能条例》的规定,只需保修5年。《民用建筑节能条例》规定的5年,为保温工程的最低保修期限,也就是说≥5年都满足要求。那么,施工总承包合同中双方约定的10年同样满足要求,这种情况下,按保修年限长的时间为准。
反之,如果原合同约定时间少于《民用建筑节能条例》规定的最低保修年限,则应以《民用建筑节能条例》规定的年限为准(或双方另行约定)。
(四)
1.【参考答案】
(1)不属于项目经理部教育的内容有:
国家和地方安全生产方针;
企业安全规章制度。
(2)项目经理部教育内容还应有:
施工现场环境;
工程施工特点。
【考点解析】
按照建设部《建筑业企业职工安全培训教育暂行规定》(建教【1997】 83号)第六条的规定:
建筑业企业新进场的工人,必须接受公司、项目(或工区、工程处、施工队,下同)、班线的三级安全培训教育,经考核合格后,方能上岗。
1)公司安全培训教育的主要内容是:国家和地方有关安全生产的方针、政策、法规、标准、规范、规程和企业的安全规章制度等。培训教育的时间不得少于15学时;
2)项目安全培训教育的主要内容是:工地安全制度、施工现场环境、工程施工特点及可能存在的不安全因素等。培训教育的时间不得少于l5学时;
3)班组安全培训教育的主要内容是:本工种的安全操作规程、事故案例剖析、劳动纪律和岗位讲评等。培训教育的时间不得少于20学时。
2.【参考答案】
事件二中施工总承包单位做法的不妥之处及正确做法分别如下:
不妥之一:施工总承包单位将同一炉罐号的钢筋组批进行取样复试;
正确做法:按同一厂家、同一牌号、同一规格,将同一进场批次进场的钢筋,按不超过60t为一检验批量进行取样复试。
不妥之二:调直钢筋时,冷拉率控制为3%;
正确做法:调直钢筋时,冷拉率不应超过1%。
【考点解析】
事件二描述了两件事,一是钢筋组批取样复试,二是钢筋冷拉调直。故回答时,至少要分成两部分来答题。
(1)根据《混凝土结构工程施工质量验收规范》GB 50204~2002(2011年版)条文说明第5.2.1条规定,钢筋进场时,应检查产品合格证和出厂检验报告,并按相关标准的规定进行抽样检验。由于工程量、运输条件和各种钢筋的用量等的差异,很难对钢筋进场的批量大小作出统一规定。实际检查时,若有关标准中对进场检验作了具体规定,应遵照执行;若有关标准中只有对产品出厂检验的规定,则在进场检验时,批量应按下列情况确定:
①对同一厂家、同一牌号、同一规格的钢筋,当一次进场的数量大于该产品的出厂检验批量时,应划分为若干个出厂检验批量,按出厂检验的抽样方案执行。
②对同一厂家、同一牌号、同一规格的钢筋,当一次进场的数量小于或等于该产品的出厂检验批量时,应作为一个检验批量,然后按出厂检验的抽样方案执行。
③对不同时间进场的同批钢筋,当确有可靠依据时,可按一次进场的钢筋处理。
(2)根据《混凝土结构工程施工质量验收规范》GB 50204~2002(2011年版)第5.3.3条规定,钢筋宜采用无延伸功能的机械设备进行调直,也可采用冷拉调直。当采用冷拉调直时,HPB300 光圆钢筋的冷拉率不宜大于4%;HRB335、HRB400、HRB500、HRBF335、HRBF400、HRBFS00及RRB400带肋钢筋的冷拉率不宜大于1%。
由此可见,采用冷拉方法调直钢筋并没有错,不正确的地方是控制3%的冷拉率。对于Ⅱ级钢筋,冷拉率不应超过1%。
3.【参考答案】
模板及支架示意图中不妥之处相对应的正确做法有:
(1)钢管宜采用φ48.3×3.6钢管;
(2)立杆底应设置垫板(底座);
(3)应设置扫地杆;
(4)立杆应对接扣件连接;
(5)最上面一步纵向水平杆以上的立杆自由端控制在500mm以内;
(6)应设置(竖向和水平)剪刀撑;
(7)螺杆伸出钢管顶部不得大于200mm;
(8)在最顶步距两水平拉杆中间应加设一道水平拉杆。
【考点解析】
这是一道安全管理的题,考核的内容是现场最为常见的扣件式铜管脚手架(满堂支撑架)搭设构造要求,属必须掌握并熟练运用的知识点。
仔细审题,背景资料中的模板及支架示意图首先要定性为满堂支架,故不能按围护脚手架、满堂操作架的构造要求来比照检查图示的错误,只能参照满堂支撑架(模架)相关技术要求。
根据《建筑施工扣件式钢管脚手架安全技术规范》JGJ 130一2011第3.1.2条规定,脚手架钢管宜采用声48.3×3.6钢管。每根钢管的最大质量不应大于25.8kg。这是新规范与2001版对比中比较明显改变,此为错误之处一。
根据《建筑施工扣件式钢管脚手架安全技术规范》JGJ 130~2011第6.2.1条规定,纵向水平杆应设置在立杆内侧,单根杆长度不应小于3跨。这是针对围护脚手架的构造要点。水平杆的接长图中不涉及,故回答时也不涉及。
根据《建筑施工扣件式钢管脚手架安全技术规范》JGJ 130一2011第6.3.1条规定,每根立杆底部宜设置底座或垫板。这是错误之处二。
根据《建筑施工扣件式钢管脚手架安全技术规范》JGJ 130一2011第6.3.2条规定,脚手架必须设置纵、横向扫地杆。纵向扫地杆应采用直角扣件固定在距钢管底端不大于200mm处的立杆上。横向扫地杆应采用直角扣件固定在紧靠纵向扫地杆下方的立杆上。
这是错误之处三。
根据《建筑施工扣件式钢管脚手架安全技术规范》JGJ 130一2011第6.3.5条规定,单排、双排与满堂脚手架立杆接长除顸层顶步外,其余各层各步接头必须采用对接扣件连接。这是错误之处四。
根据《建筑施工扣件式钢管脚手架安全技术规范》JGJ 130一2011第6.3.6条第2款规定,当立杆采用搭接接长时,搭接长度不应小于1m,并应采用不少于2个旋转扣件固定。端部扣件盖板的边缘至杆端距离不应小于100mm。
根据《建筑施工扣件式钢管脚手架安全技术规范》JGJ 130一2011第6.9.1条规定,满堂支撑架步距与立杆间距不宜超过本规范附录C表C一2~表C一5规定的上限值,立杆伸出顶层水平杆中心线至支撑点的长度a不应超过0.5m。根据图示中螺杆外伸长度300mm的比例估计,最上一步水平杆中心线至木方下皮的距离目测超过500mm,这是错误之处五。
根据《建筑施工扣件式钢管脚手架安全技术规范》JGJ 130一2011第6.9.3条规定,满堂支撑架应根据架体的类型设置剪刀撑。这是错误之处六。
关于剪刀撑设置,分两个方面:水平剪刀撑、竖向剪刀撑。规范中规定在竖向剪7J撑顶部交点平面应设置水平剪刀撑;当支撑高度超过8m(图中满堂支撑架体搭设高度明显超过8m),扫地杆的设置层应设置水平剪刀撑。
根据《建筑施工扣件式钢管脚手架安全技术规范》JGJ 130―2011第6.9.6条规定,满堂支撑架的可调底座、可调托撑螺杆伸出长度不宜超过300mm,插入立杆内的长度不得小于150mm。根据图示信息,暂无法明确判断插入立杆内长度是否正确。
关于可调托撑螺杆伸出长度的问题,在《建筑施工模板安全技术规范》JOJ 162―2008第6.1.9条第2款中规定,钢管立柱底部应设垫木和底座,顶部应设可调支托,U形支托与楞梁两侧间如有间隙,必须楔紧,其螺杆伸出钢管项部不得大于200mm,螺杆外径与立柱钢管内径的间隙不得大于3mm,安装时应保证上下同心。
该知识点,在《建筑施工模板安全技术规范》JGJ 162―2008中是黑体字,以强制性条文的形式进行要求。貌似是《建筑施工扣件式钢管脚手架安全技术规范》JGJ130一2011与《建筑施工模板安全技术规范》JGJ 162~2008两规范的不协调之处。
此题明显属于模板支撑架体,且从施工安全的角度讲,本题更适用于《建筑施工模板安全技术规范》JGJ162―2008中“螺杆伸出钢管顶部不得大于200mm”条款的规定。故螺杆外伸长度为错误之处七。
根据《建筑施工模板安全技术规范》JGJ 162―2008第6.1.9条第3款中规定,可调支托底部的立柱顶端应沿纵横向设置一道水平拉杆。当层高在8~20m时,在最顶步距两水平拉杆中间应加设一道水平拉杆;当层高大于20m时,在最顶两步距水平拉杆中间应分别增加一道水平拉杆。本题示意图中无拉杆,这是错误之处八。
4.【参考答案】
事件四中混凝土表面质量缺陷产生的可能原因有:
(1)模板表面不光滑、安装质量差,接缝不严、漏浆,模板表面污染未清除。
(2)木模板在混凝土入模之前没有充分湿润,钢模板脱模剂涂刷不均匀。
(3)钢筋保护层垫块厚度或放置间距、位置等不当。
(4)局部配筋、铁件过密,阻碍混凝土下料或无法正常振捣。
(5)混凝土坍落度、和易性不好。
(6)混凝土浇筑方法不当、不分层或分层过厚,布料顺序不合理等。
(7)混凝土浇筑高度超过规定要求,且未采取措施,导致混凝土离析。
(8)漏振或振捣不实。
(9)混凝土拆模过早。
【考点解析】
这是一道开放性的题,对于具备一定现场施工经验的考生来说,难度不大。
混凝土表面缺陷可能的产生原因有很多,按考试用书上给出的就有如下原因:
(1)模板表面不光滑、安装质量差,接缝不严、漏浆,模板表面污染未清除。
(2)木模板在混凝土入模之前没有充分湿润,钢模板脱模剂涂刷不均匀。
(3)钢筋保护层垫块厚度或放置间距、位置等不当。
(4)局部配筋、铁件过密,阻碍混凝土下料或无法正常振捣。
(5)混凝土坍落度、和易性不好。
(6)混凝土浇筑方法不当、不分层或分层过厚,布料顺序不合理等。
(7)混凝土浇筑高度超过规定要求,且未采取措施,导致混凝土离析。
(8)漏振或振捣不实。
(9)混凝土拆模过早。
注意了,又是“至少列出几项”的提问。通常这样的问题,其回答都是开放式的,与现场经验紧密接合。只要你在现场遇到的,觉得跟这问题相关的,都可以提炼成一句话写出来碰运气。
一定不能提问要求五项就回答五项,要尽量多回答。
(五)
1.【参考答案】
大学城建设单位直接将展览馆项目委托给某公司:合法。
理由:在建工程追加的附属小型工程,原中标人仍具备承包能力的,可以不进行施工招标。
【考点解析】
根据《房屋建筑和市政基础设施工程施工招标投标管理办法》(建设部令[2001]89号)第十条的规定,工程有下列情形之一的,经县级以上地方人民政府建设行政主管部门批准,可以不进行施工招标:
1)停建或者缓建后恢复建设的单位工程,且承包人未发生变更的;
2)施工企业自建自用的工程,且该施工企业资质等级符合工程要求的;
3)在建工程追加的附属小型工程或者主体加层工程,且承包人未发生变更的;
4)法律、法规、规章规定的其他情形。
根据《工程建设项目施工招标投标办法》(七部委[2013]30号令)第十二条规定,依法必须进行施工招标的工程建设项目有下列情形之一的,可以不进行施工招标:
1)涉及国家安全、国家秘密、抢险救灾或者属于利用扶贫资金实行以工代赈需要使用农民工等特殊情况,不适宜进行招标;
2)施工主要技术采用不可替代的专利或者专有技术;
3)已通过招标方式选定的特许经营项目投资人依法能够自行建设;
4)采购人依法能够自行建设;
5)在建工程追加的附属小型工程或者主体加层工程,原中标人仍具备承包能力,并且其他人承担将影响施工或者功能配套要求;
6)国家规定的其他情形。
根据背景资料,建设单位追加新建校史展览馆,紧临在建大学城项目,可以认定校史展览馆为大学城项目追加的附属小型工程,且原中标人仍具备承包能力,故不用招标。
2.【参考答案】
(1)该工程采用固定总价合同模式:妥当。
(2)固定总价模式适用的条件:
1)工程量小、工期短,估计在施工过程中环境因素变化小,工程条件稳定并合理;
2)工程设计详细,图纸完整、清楚,工程任务和范围明确;
3)工程结构和技术简单,风险小;
4)投标期相对宽裕,承包商可以有充足的时间详细考察现场、复核工程量、分析招标文件、拟订施工计划。
(3)常用的合同计价模式还有:
1)变动总价合同(可调总价合同);
2)固定单价合同;
3)变功单价合同(可调单价合同);
4)成本加酬金合同(成本补偿合同)。
【考点解析】
总价合同的风险是偏于承包商,相对发包方有利,常被发包方所采用.通过公开招标(或议标)选择满意的承包商。固定总价合同模式适宜用于以下项目:
1)工程前期工作充分、扎实,设计依据和基础资料翔实而准确,设计工作比较细,设计图纸正确而完整,表述工程内容、工程规模和项目划分清楚、明确。建设单位根据这些技术资料进行投资准备和发包工程心中有数,而承包商据此投标报价也有基础。
2)工程量小、结构简单、工期短、估价方便的中小型建筑工程项目。
3)招标的前期工作做得好.招标(或议标)时留给承包商的时间相对充足。承包商就获得充裕时间研究招标文件及相关资料,到现场实地考察、了解、核实和收集有关资料,从而使招标作价和编制施工方案更接近实际,不会失控和被动。
4)设计图纸及技术资料完备,合同条件公平、合理.尤其对于关键条款对承包商更有利,如支付、税收、保险、调价、变更、索赔、仲裁等。
3.【参考答案】
校史展览馆工程临时用电管理中的不妥之处及正确做法分别如下:
不妥一:施工单位仅编制了安全用电和电气防火措施。
正确做法:施工现场临时用电设备在5台及以上者,应编制《用电组织设计》(或临时用电专项施工方案)。
不妥二:临时用电设备从分配电箱连接供电。
正确做法:用电设备从开关箱取电,开关箱再从分配电箱取电(或“一机一闸一漏”设置或“总一分一开”模式或“三级配电”模式)。
不妥三:机械工进行用电管理。
正确做法:应由持上岗证的电工进行管理。
【考点解析】
仔细审题,涉及施工现场临时用电管理的主要有如下四点:
(1)依据《施工组织设计》编制了《安全用电乖电气防火措施》;
(2)不单独设置总配电箱,直接从大学城项目总配电箱引出分配电箱;
(3)临时用电设备直接从分配电箱连接供电;
(4)安排了一名有经验的机械工进行用电管理。
《施工现场临时用电安全技术规范》JGJ 46―2005第3.1.1条规定:施工现场临时用电设备在5台及以上或设备总容量在50kW及以上者,应编制用电组织设计。第3.1.6条规定:施工现场临时用电设备在5台以下或设备总容量在50kW以下者,应制定安全用电和电气防火措施。
关于总配电箱,考虑到展览馆项目紧临大学城项目,且用电负荷较小,在原总配电箱满足要求及相关规定的前提下,可以不单独设置。
第8.1.3条规定:每台用电设备必须有各自专用的开关箱,严禁用同一个开关箱直接控制2台及2台以上用电设备(含插座)。
第3.2.1条规定:电工必须经过按国家现行标准考核合格后,持证上岗工作;其他用电人员均必须通过相关安全教育培训和技术交底,考核合格后方可上岗工作。
4.【参考答案】
女儿墙卷材根部开裂的可能原因:山墙或女儿墙与屋面板缺乏牢固拉结,转角处没有做成钝角,垂直面卷材与屋面卷材没有分层搭槎,基层松动(如墙外倾或不均匀沉陷)。
治理措施:(1)将转角处开裂的卷材割开;(2)旧卷材烘烤后分层剥离;(3)清除旧胶结料;(4)将新卷材分层压入旧卷材下,并搭接粘贴牢固;(5)再在裂缝表面增加一层卷材,四周粘贴牢固。
【考点解析】
这是一道开放性的题,考核考生解决实际问题的能力,需考生具备技术综合水平和现场实践经验。
事件二的描述中给定了漏水的原因:转角处卷材开裂,排除了卷材收口不严、女儿墙压顶滴水线破损导致雨水沿墙进入卷材这些可能。从施工的角度分析可能原因,也就是哪些施工方式可以会导致转角处卷材开裂,问题就相对明确了。可能的原因有:山墙或女儿墙与屋面板缺乏牢固拉结,转角处没有做成钝角,垂直面卷材与屋面卷材没有分层搭槎,基层松动(如墙外倾或不均匀沉陷)。
治理的措施:将转角处开裂的卷材割开,旧卷材烘烤后分层剥离,清除旧胶结料,将新卷材分层压入旧卷材下,并搭接粘贴牢固,再在裂缝表面增加一层卷材,四周粘贴牢固。
5.【参考答案】
施工单位对竣工验收日期提出异议:合理。
理由:建设单位提前投入使用的工程,其合理的竣工日期应为施工单位提交工程验收报告之目。
合理竣工日期为:2013年9月18日。
【考点解析】
根据《建设工程施工合同(示范文本)》GF1999―0201“第二部分通用条款”的32.8条之规定:“工程未经竣工验收或竣工验收未通过的,发包人不得使用。发包人强行使用时,由此发生的质量问题及其他问题,由发包人承担责任。”
最高人民法院的《施工合同司法解释》(法释[2004]14号)第l3条:“建设工程未经竣工验收,发包人擅自使用后,又以使用部分质量不符合约定为由主张权利的,不予支持;但是承包人应当在建设工程的合理使用寿命内对地基基础工程和主体结构质量承担民事责任。”
也就是说,建设工程未经竣工验收,擅自使用视为验收合格。
根据《建设工程施工合同(示范文本)》(GF一2013一o201)“第二部分通用条款”的13.2.2条中规定:“(5)工程未经验收或验收不合格,发包人擅自使用的,应在转移占有工程后7天内向承包人颁发工程接收证书;发包人无正当理由逾期不颁发工程接收证书的,自转移占有后第15天起视为已颁发工程接收证书。”
根据背景资料,施工单位于2010年9月18日提交工程验收报告,建设单位将工程竣工验收时间推迟到11月18日进行,已超过15天时限,视为竣工验收已通过,故合理竣工日期为提交工程验收报告的日期,即2010年9月18日。
最新资讯
- 【免费领取】一级建造师考试基础自测卷,备考必备!2025-11-03
- 考生速进!2026年一建备考,好用的刷题APP是哪个?2025-10-21
- 别错过!8月30日9点一建决赛圈等你来考2025-08-30
- 别错过!2025年一级建造师黄金AB卷免费领取啦2025-08-11
- 提分必备!2025年一建《建设工程经济》经典100题免费下载2025-07-26
- 免费下载!2025年一级建造师《工程法规》经典100题,助你冲刺提分2025-07-23
- 备考必刷!2025年一级建造师项目管理经典100题免费下载2025-07-23
- 一级建造师题目讲解视频:提高价值的途径2025-07-17
- 一级建造师题目解析视频:阀门安装前阀门搬运的正确做法2025-07-16
- 备考必看!免费获取2025年新版一级建造师经典100题2025-07-07

