造价工程师辅导资料:垫层的内容和计算(2)
更新时间:2009-10-19 15:27:29
来源:|0
浏览
收藏
一级造价工程师报名、考试、查分时间 免费短信提醒
摘要 造价工程师辅导资料:垫层的内容和计算(2)
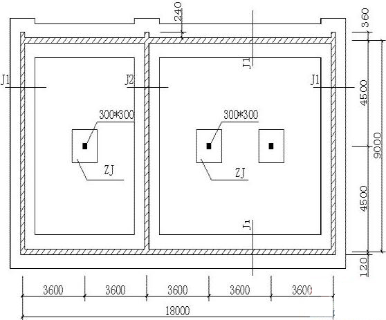
某建筑物基础平面图及详图如图2-4( a)、(b)所示,地面做法:20厚1:2.5的水泥砂浆,100厚C10的素混凝土垫层,素土夯实。基础为M5.0的水泥砂浆砌筑标准粘土砖。试求垫层工程量。



图2-4c基础详图
解:①C10的素混凝土地面垫层工程量:
V垫层=( S净- S扣)×δ
=[(3.6×5-0.24×2)×(9-0.24)-0.3 × 0.3 ×3]×0.1
=15.32m3
套定额:2-1-13
②独立基础C10素混凝土垫层工程量:
V垫层= ab×δ×n
=1.3×1.3×0.1×3=0.51 m3
套定额:2-1-13
注意:垫层定额按地面垫层编制,独立基础垫层套定额时人工、机械要分别乘以系数1.10.
③条形基础3:7灰土垫层工程量:
V垫层= V外墙垫+V内墙垫
= S断×L中+ S断×L基底净长
=1.2×0.3×[(9+3.6×5)×2+0.24×3]+ 1.2×0.3×(9-1.2)
=22.51 m3
套定额:2-1-1
注意:条形基础垫层套定额时人工、机械要分别乘以系数1.05.
?2009年注册造价工程师考考试时间:10月24、25日。
?2009年注册造价工程师考前网上辅导招生简章
?04、05、06、07年造价工程师考试试卷及答案汇总
?2009造价工程师老师辅导,现在报名可获赠08和07年课程!
?08年全国注册造价工程师考试成绩查询及反馈 
编辑推荐
下一篇:造价工程师辅导工程成本限额设计
最新资讯
- 一级造价工程师教材是哪个出版社?中国计划+中国城市出版社2026-04-17
- 一级造价师教材几年改版一次?变动周期及2026年情况说明2026-04-09
- 官方确认!2026年一级造价工程师教材沿用2025年版2026-01-04
- 备考必看:一级造价师《安装计量》十大核心知识点总结2025-11-02
- 速看!一级造价师《土建计量》十大核心考点总结2025-11-01
- 免费分享:一级造价师《工程计价》十大核心考点总结2025-10-31
- 一键收藏:一级造价师《造价管理》十大核心考点总结2025-10-30
- 免费分享:2025年一级造价师《工程计价》考点汇总2025-10-29
- 2025年一级造价师《工程计价》考试难度及考点分析2025-10-28
- 免费分享:2025年一级造价师《造价管理》考点汇总2025-10-27