2014年造价师《案例分析》教材第三章案例一
课程推荐:精品VIP―网+面强势结合 环球造价工程师案例强化套餐
相关推荐:2014年造价工程师在线模考 2014年造价工程师考试大纲
专题推荐:环球网校造价最全习题演练套餐 环球网校造价工程师培训权威
第三章 工程计量与计价
本章基本知识点:
1.《全国统一建筑安装工程基础定额》、《全国统一建筑工程预算工程量计算规则》、《全国统一安装工程预算工程量计算规则》、《建设工程工程量清单计价规范》(GB50500一2013)、《房屋建筑与装饰工程量计算规范》(GB50854―2013)、《通用安装工程工程量计算规范》( GB50856―2013)、《建筑工程建筑面积计算规范》(GB/T50353―2005)、《建筑安装工程费用项目组成》(建标(2013)44号文件);
2.建筑安装工程人工、材料、机械台班消耗指标的确定方法;
3.概预算工料单价的组成、确定、换算及补充方法;
4.工程造价指数的确定及运用;
5.设计概算的编制方法;
6.单位工程施工图预算的编制方法;
7.建设工程工程量清单计价方法。
【案例一】
背景:
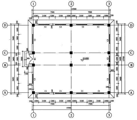
某钢筋混凝土框架结构建筑物,共四层,首层层高4.2m,第二至四层层高分别为3.9m,首层平面图、柱独立基础配筋图、柱网布置及配筋图、一层顶梁结构图、一层 顶板结构图如图3-1A、图3-1B、图3-1C、图3-1D、图3-1E所示。柱顶的结构标高为15.87m,外墙为240mm厚加气混凝土砌块填充墙,首层墙体砌筑在顶面标高为-0. 20m的钢筋混凝土基础梁上,M5.0混合砂浆砌筑。 M1为1900mm×3300mm的铝合金平开门;C1为2100mm×2400mm的铝合金推拉窗;C2为1200mm×2400mm的铝合金推拉窗;C3为1800mm×2400mm的铝合金推拉窗;门窗详见图集L03J602;窗台高900mmo门窗洞口上设钢筋混凝土过梁,截面为240mm×180mm,过梁两端各伸入砌体250mm。已知本工程抗震设防烈度为7度,抗震等级为四级(框架结构),梁、板、柱的混凝土均采用C30商品混凝土;钢筋的保护层厚度:板为15mm,梁柱为25mm,基础为35mm。楼板厚有150mm.lOOmm两种。块料地面的做法为:素水泥浆一遍,25mm厚1:3干硬性水泥砂浆结合层,800mm×800mm全瓷地面砖,白水泥砂浆擦缝。木质踢脚线高150mm,基层为9mm厚胶合板,面层为红榉木装饰板,上口钉木线。柱面的装饰做法为:木龙骨榉木饰面包方柱,木龙骨为25mm×30mm,中距300mm×300mm,基层为9mm厚胶合板,面层为红榉木装饰板。四周内墙面做法为:20mm厚1:2.5水泥砂浆抹面。天棚吊顶为轻钢龙骨矿棉板平顶,U形轻钢龙骨中距为450mm×450mm,面层为矿棉吸声板,首层吊顶底标高为3.4m。




问题:
1.依据《房屋建筑与装饰工程量计算规范》( GB50854―2013)的要求计算建筑物首层的过梁、填充墙、矩形柱(框架柱)、矩形梁(框架梁)、平板、块料地面、木质踢脚线、墙面抹灰、柱面(包括靠墙柱)装饰、吊顶天棚的工程量。将计算过程及结果填人分部分项工程量计算表3-1中。


(未注明的板分布筋为盐8@ 250)
2.依据《房屋建筑与装饰工程量计算规范》和《建设工程工程量清单计价规范》( GB50500-2013)(以下简称《计价规范》)编制建筑物首层的过梁、填充墙、矩形柱(框架柱)、矩形梁(框架梁)、平板、块料地面、木质踢脚线、墙面抹灰、柱面(包括靠墙柱)装饰、吊顶天棚的分部分项工程量清单,分部分项工程的统一编码,见表3-2 。

3.钢筋的理论重量见表3-3,计算②轴线的KL4、⑥轴线相交于②轴线的KZ1中除了箍筋、腰筋、拉筋之外的其他钢筋工程量以及①~②与④~⑤之间的LB1中底部钢筋的工程量。将计算过程及结果填人钢筋工程量计算表3-4中。钢筋的锚固长度为40d,钢筋接头为对头焊接。

分析要点:
问题1:依据《房屋建筑与装饰工程量计算规范》对工程量计算的规定,掌握分部分项工程清单工程量的计算方法。
问题2:依据《房屋建筑与装饰工程量计算规范》和《计价规范》的规定和问题1的工程量计算结果,编制相应分部分项工程量清单,掌握项目特征描述的内容。
问题3:按照《全国统一建筑工程预算工程量计算规则》计算各类构件的钢筋的工程量。考核钢筋混凝土结构中柱、梁、板的钢筋平面整体表示方法的识图和计算,识图方法按照《混凝土结构施工图平面整体表示方法制图规则和构造详图》(现浇混凝土框架、剪力墙、梁、板)(llG101--1)的规定,柱插筋在基础中的锚固做法详见《混凝土结构施工图平面整体表示方法制图规则和构造详图》(独立基础、条形基础、筏形基础及桩基承台)( 11G101--3)的规定。
答呈:
问题1:
解:依据《房屋建筑与装饰工程量计算规范》计算建筑物首层的过梁、填充墙、矩形柱(框架柱)、矩形梁(框架梁)、平板、块料地面、木质踢脚线、墙面抹灰、柱面(包括靠墙柱)装饰、吊顶天棚的工程量,计算过程见表3-5。



问题2:
解:依据《房屋建筑与装饰工程量计算规范》和《计价规范》编制建筑物首层的过梁、填充墙、矩形柱(框架柱)、矩形梁(框架梁)、平板、地面瓷砖、木质踢脚板、墙面一般抹灰、柱面装饰、吊顶天棚的分部分项工程量清单与计价表,见表3-6。


问题3:
解:计算2轴线的KIA、⑥轴线相交于②轴线的KZ1中除了箍筋、腰筋、拉筋之外的其他钢筋工程量以及LB1中的底部钢筋的工程量。将计算结果填入钢筋工程量计算表中,见表3-7。
LB1中下部Φ8钢筋的根数:
(5400 - 150 - 50+250 - 300 - 50)/150+1=35(根)
LB1中下部Φ10钢筋的根数:
(7500 - 150 - 50+250 - 300 - 50)/150+1 =49(根)
表3-7 钢筋工程量计算表


最新资讯
- 官方确认!2026年一级造价工程师教材沿用2025年版2026-01-04
- 备考必看:一级造价师《安装计量》十大核心知识点总结2025-11-02
- 速看!一级造价师《土建计量》十大核心考点总结2025-11-01
- 免费分享:一级造价师《工程计价》十大核心考点总结2025-10-31
- 一键收藏:一级造价师《造价管理》十大核心考点总结2025-10-30
- 免费分享:2025年一级造价师《工程计价》考点汇总2025-10-29
- 2025年一级造价师《工程计价》考试难度及考点分析2025-10-28
- 免费分享:2025年一级造价师《造价管理》考点汇总2025-10-27
- 免费分享:2025年一级造价师案例分析重要考点汇总2025-10-27
- 2025年一级造价师《造价管理》重点考查内容2025-10-24