2006年造价工程师真题-案例分析试题六
课程推荐:精品VIP―网+面强势结合 环球造价工程师案例强化套餐
相关推荐:2014年造价工程师在线模考 2014年造价工程师考试大纲
专题推荐:环球网校造价最全习题演练套餐 环球网校造价工程师培训权威
试题六(40分)
本试题分三个专业(1.土建工程、Ⅱ.工业管道安装工程、Ⅲ.电气安装工程),请任选其中一题作答。若选作多题,按所答的第一题(卷面顺序)计分。
1.土建工程
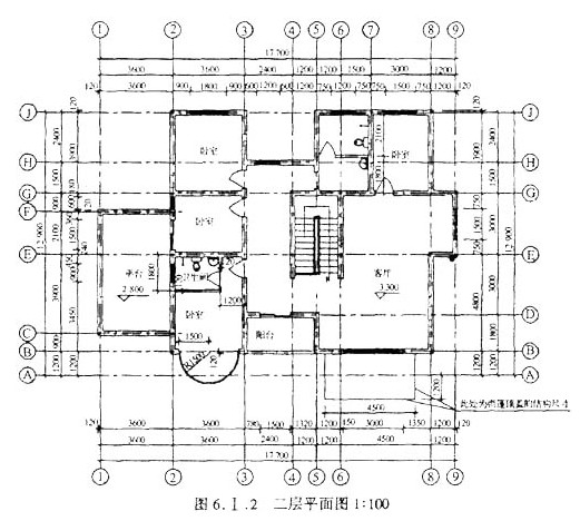
某别墅部分设计如图6.I所示。墙体除注明外均为240mm厚。坡屋面构造做法:钢筋混凝土屋面板表面清扫干净,素水泥浆一道,20mm厚l:3水泥砂浆找平,刷热防水膏,采用20mm厚1:3干硬性水泥砂浆防水保护层;25mm厚1:1:4水泥石灰砂浆铺瓦屋面。卧室地面构造做法:素土夯实,60mm厚C10混凝土垫层,20mm厚l:2水泥砂浆抹面压光。卧室按面构造做法:150mm现浇钢筋混凝土楼板,素水泥浆一道,20mm厚l:2水泥砂浆抹面压光。
问题
1.依据《建筑工程建筑面积计算规范}(GB/T50353――2005)的规定,计算别墅的建筑面积。将计算过程及计量单位、计算结果填入答题纸表6.I.1“建筑面积计算表”。

注:弧形落地窗半径只=1500mm(为B轴外墙外边线到弧形窗边线的距离,弧形窗的厚度忽略不计)
2.依据《建设工程工程量清单计价规范》计算卧室(不含卫生问)楼面、地面工程量,计算坡屋面工程量。将计算过程及结果填入答题纸表6.I.2“分部分项工程量计算表”。
3.依据《建设工程工程量清单计价规范》编制卧室楼面、地面,坡屋面工程的分部分项工程量清单,填入答题纸表6.I.3“分部分项工程量清单表”(水泥砂浆楼地面的项目编码为020101001,瓦屋面的项目编码为010701001)。
4.依据《建设工程工程量清单计价规范》编制“单位工程费汇总表”。假设别墅部分项目的分部分项工程量清单计价合计207 822元,其中人工费41 560元;措施项目清单计价合计48 492元;其他项目清单计价合计l2 123元;规费以人工费为基数计取,费率为30%;税率为3.413%。将有关数据和相关内容填入答题纸表6.I.4“单位工程费汇总表”。
(计算结果均保留两位小数。)



Ⅱ.管道安装工程
1.某总承包施工企业根据某安装工程的招标文件和施工方案决定按以下数据及要求进行投标报价:
该安装工程按设计文件计算出各分部分项工程工料机费用合计为6000万元,其中人工费占10%。
安装工程脚手架搭拆的工料机费用,按各分部分项工程人工费合计的8%计取,其中人工费占25%;安全防护、文明施工措施费用,按当地工程造价管理机构发布的规定计100万元,根据建设部建办[2005]89号《建筑工程安全防护、文明施工措施费用及使用管理规定》中“投标方安全防护、文明施工措施的报价,不得低于根据工程所在地工程造价管理机构测定费率计算所需费用总额的90%”的规定,业主要求按90%计;其他措施项目清单费用按l50万元计。
施工管理费、利润分别按人工费的60%、40%计。
按业主要求,总承包企业将占工程总量20%的部分专业工程发包给某专业承包企业,总承包服务费按分包专业工程各分部分项工程人工费合计的l5%计取。
规费按8万元计;税金按税率3.50%计。
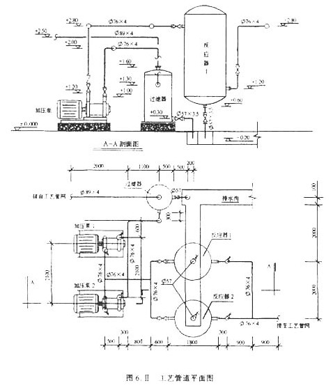
2.其中某生产装置中部分工艺管道系统如图6.Ⅱ所示。
管道系统各分部分项工程量清单项目的统一编码见下表:

问题
1.按照《建设工程工程量清单计价规范》和建标[2003]206号文《建筑安装工程费用项目组成》的规定,计算出总承包企业对该单项工程的(含分包专业工程)投标报价。将各项费用的计算结果填入答题纸表6.Ⅱ。1“单项工程费用汇总表”中,其计算过程写在表6.Ⅱ.1“单项工程费用汇总表”的下面。(计算结果均保留整数)
2.根据《建设工程工程量清单计价规范》的规定,计算管道φ89×4、管道φ76×4、管道φ57×3.5、管架制作安装、焊缝x光射线探伤、焊缝超声波探伤等六项工程量,并写出计算过程(计算结果均保留一位小数)。编列出该管道系统(注:阀门、法兰安装除外)的分部分项工程量清单项目,将结果填入答题纸表6.Ⅱ.2“分部分项工程量清单表”。

说明:
1.本图所示为某工厂生产装置的部分工艺管道系统,该管道系统工作压力为2.0MPa.图中标注尺寸标高以m计,其他均以mm计。
2.管道均采用20#碳钢无缝钢管,弯头采用成品压制弯头,三通为现场挖眼连接,管道系统的焊接均为氩电联焊。
3.所有法兰为碳钢对焊法兰;阀门型号:止回阀为H41H一25,截止阀为J41H一25,采用对焊法兰连接。
4.管道支架为普通支架,共耗用钢材42.4kg,其中施工损耗为6%。
5.管道系统安装就位后,对φ76×4的管线的焊口进行无损探伤。其中法兰处焊口采用超声波探伤;管道焊缝采用x光射线探伤,片子规格为80mm×l50mm,焊口按36个计。
6.管道安装完毕后,均进行水压试验和空气吹扫。管道、管道支架除锈后,均进行刷防锈漆、调和漆各两遍。
Ⅲ.电气安装工程
某别墅局部照明系统回路如图6.Ⅲ.1和图6.Ⅲ.2所示。
问题
1.根据图示内容和《建设工程工程量清单计价规范》的规定,计算相关工程量和编制分部分项工程量清单。将配管和配线的计算式填入答题纸上的相应位置,并填写答题织表6.Ⅲ.1“分部分项工程量清单表”。
2.假设镀锌钢管DN20暗配和管内穿绝缘导线BV2.5mm2清单工程量分别为30m和80m,依据上述相关费用数据计算以上两个项目的综合单价,并分别填写答题纸表6.Ⅲ.2和表6.Ⅲ.3“分部分项工程量清单综合单价计算表”。
3.依据问题2中计算所得的数据进行综合单价分析,将电气配管(镀锌钢管DN20暗配)和电气配线(管内穿绝缘导线BV2.5mm2)两个项目的综合单价及其组成计算后填写答题纸表6.Ⅲ.4“分部分项工程量清单综合单价分析表”。
(计算过程和结果均保留两位小数。)

最新资讯
- 更新版:2025年一级造价师案例考试真题及答案(1-3题)2025-10-27
- 速领!2025年一级造价师各科目考试真题及答案【完整版】2025-10-26
- 2025年一级造价师《案例分析》真题解析(试题三)2025-10-25
- 2025年一级造价师《安装计量》真题答案61-70题2025-10-23
- 2025年一级造价师《安装计量》真题答案41-50题2025-10-23
- 2025年一级造价师《安装计量》真题及答案31-40题2025-10-23
- 2025年一级造价师《安装计量》真题答案21-30题2025-10-23
- 2025年一级造价师《案例分析》考试真题及答案(试题一)2025-10-23
- 2025年一级造价师案例真题及答案试题五(土建专业)2025-10-22
- 2025年一级造价师《土建计量》考试真题答案51-60题2025-10-22