2014二级建造师施工管理真题解析(word版)1
环球首发:2014二建真题解析|内部资料命中率
热点专题:2014年二建考试报名|准考证打印专题|合格证书专题
课程推荐:2015年二建VIP|2015二建精品VIP|2015二建全面领跑套
复习资料:二建历年真题
互动方式:二建微博|微信edu24ol_jzs2|二建论坛|QQ群178689578
1.关于施工总承包方项目管理任务的说法,正确的是( )。
A.施工总承包方一般不承担施工任务,只承担施工的总体管理和协调工作
B.施工总承包方只负责所施工部门的施工安全,对业主指定分包商的施工安全不承担责任
C.施工总承包方不与分包商直接签订施工合同,均有业主方签订
D.施工总承包方应负责施工资源的供应组织
答案:D
2.关于项目管理工作任务分工表特点的说法,真确的是( )。
A.每一个部门只能有一个主办部门
B.每一个任务只能有一个协力部门和一个配合部门
C.项目运营部应在项目竣工后介入工作
D.项目管理工作任务分工表应作为组织设计文件的一部分
答案:D
3.关于线性组织结构的说法,错误的是( )。
A.每个工作部门的指令源是唯一的
B.高组织层次部门可以向任何低组织层次下达指令
C.在特大组织系统中,指令路径会很长
D.可以避免相互矛盾的指令影响系统运行
答案:B
4.下列施工组织设计的基本内容中,可以反映现场文明施工组织的是( )。
A.工程概况
B.施工部署
C.施工平面图
D.技术经济指标
答案:C
5.下列工作中,不属于施工项目目标动态控制程序中的工作是( )。
A.目标分解
B.目标计划值搜集
C.目标计划值与实际值比较
D.采取措施纠偏
答案:B
6.项目经理在承担工程项目施工的管理工程中,其管理权力不包括( )。
A.组织项目管理班子
B.指挥项目建设的生产经营活动
C.签署项目参与人员聘用合同
D.选择施工作业队伍
答案:C
7.对建设工程项目施工负有全面管理责任的是( )。
A.企业法定代表人
B.项目经理
C.项目总工程师
D.总监理工程师
答案:B
8、政府质量监督机构对建设工程进行第一次监督检查的重点是()。
A.各参与方主体的质量行为
B.建设工程的招标结果
C.工程建设的地址
D.建设工程的实体质量
答案:A
9.下列施工成本控制的步骤,正确的是()。
A.比较―分析―预测―纠偏―检查
B.预测―比较―检查―分析―纠偏
C.预测―检查―比较―分析―纠偏
D.比较―预测―分析―检查――纠偏
答案:A
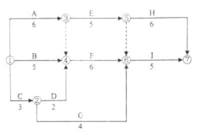
10.双代号网络计划如下图所示(时间单位:天),其计算工期是()天。

A.16
B.17
C.18
D.20
答案:B

最新资讯
- 2026备考黄金资料:二建考试题真题及答案2026-04-07
- 二建历年真题及答案解析汇总(2017-2025)2025-12-31
- 二建历年真题做几年的 二建历年真题怎么用2025-08-29
- 二建历年真题及答案解析哪里能下载全科?2025-08-28
- 2026二建备考必刷!历年真题高效提分指南2025-08-21
- 二级建造师考试历年真题免费下载2025-08-19
- 二级建造师历年真题频道 全科真题免费下载2025-08-19
- 二建真题有用吗 备考二建如何高效利用历年真题2025-08-12
- 2026年二建精讲课:5+10小白速通宝典 精准提分,全程护航2025-07-22
- 二建历年真题有必要做吗?二建历年真题在哪里下载?2025-07-22