土建工程实务辅导:装饰施工图知识4
更新时间:2009-10-19 15:27:29
来源:|0
浏览
收藏
二级造价工程师报名、考试、查分时间 免费短信提醒
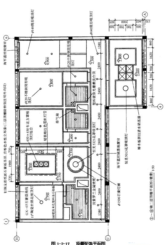
(三)装饰立面图的识读
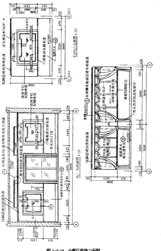
图1-2-18是某招待所小餐厅墙面的立面图,其中④~⑥立面图是以剖面的形式表示的。图上这三幅图表示出小餐厅三个墙面上用白榉板作的造型、大小、内部配置的钛金壁灯,该造型内贴淡西牙红织物壁纸,外涂迷尔壁涂料,顶棚采用轻钢龙骨挂TK板,刷宫粉色水性立邦漆,高低错落,下部标高2.600,上部标高2.800。F2立面图上表达了装饰柱的材料――迷尔壁涂料SGP-9,20mm厚硬木窗台板,以及橙灰色落地窗帘。


?2008年全国建设工程造价员资格考试大纲![]()
?2009年造价员考前网上辅导招生简章
编辑推荐
最新资讯
- 2026年二级造价工程师考试大纲:考试说明、考试科目、考试题型、考试目的及考试内容2026-01-08
- 2026年二级造价工程师《建设工程计量与计价实务》考试大纲内容:土木建筑工程2026-01-07
- 2026年二级造价工程师《建设工程造价管理基础知识》考试大纲要求及内容2026-01-07
- 2026年度全国二级造价工程师职业资格考试大纲2026-01-06
- 考前速记!2025年甘肃省二级造价师考试《造价管理》公式汇总2025-12-01
- 考前5天!2025年安徽省二级造价工程师考前3页纸,抓紧背起来2025-12-01
- 2025年甘肃二级造价师考前3页纸~免费下载2025-11-30
- 免费下载!2025年安徽二级造价师备考资料包2025-11-21
- 2025年甘肃二级造价师备考资料:必备十页纸+练习题2025-11-21
- 免费下载!2025年新疆二级造价师考前3页纸2025-11-04