土建工程实务辅导:结构施工图7
更新时间:2009-10-19 15:27:29
来源:|0
浏览
收藏
二级造价工程师报名、考试、查分时间 免费短信提醒
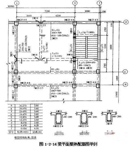
2.截面注写方式
截面注写方式是将断面号直接画在平面梁配筋图上,断面详图画在本图或其他图上。截面注写方式既可以单独使用,也可与平面注写方式结合使用,如在梁密集区,采用截面注写方式可使图面清晰。
图1-2-14为平面注写和截面注写结合使用的图例。图中吊筋直接画在平面图中的主梁上,用引线注明总配筋值,如L3中吊筋2ф18
图1-2-10 粱平面整体配筋图举例

(三)柱的配筋图画法
柱平面整体配筋图是在柱平面布置图上采用列表注写方式或截面注写方式表达。
用双比例法画柱平面配筋图,在柱所在平面位置上,将各柱断面放大后,在两个方向上分别注明同轴线的关系,将柱配筋值、配筋随高度变化值及断面尺寸、尺寸随高度变化值与相应的柱高范围成组对应,在图上注明。柱箍筋间距加密区与非加密区间距值用“/”线分开。
在注写上述各种数值时用列表的方式注写叫列表注写方式;分别在不同编号的柱中选择一个截面直接注写的方式叫截面注写方式。
图1-2-15为列表注写方式示例。

编辑推荐
上一篇:土建工程实务辅导:结构施工图6
下一篇:土建工程实务辅导:结构施工图汇总
最新资讯
- 2026年二级造价工程师考试大纲:考试说明、考试科目、考试题型、考试目的及考试内容2026-01-08
- 2026年二级造价工程师《建设工程计量与计价实务》考试大纲内容:土木建筑工程2026-01-07
- 2026年二级造价工程师《建设工程造价管理基础知识》考试大纲要求及内容2026-01-07
- 2026年度全国二级造价工程师职业资格考试大纲2026-01-06
- 考前速记!2025年甘肃省二级造价师考试《造价管理》公式汇总2025-12-01
- 考前5天!2025年安徽省二级造价工程师考前3页纸,抓紧背起来2025-12-01
- 2025年甘肃二级造价师考前3页纸~免费下载2025-11-30
- 免费下载!2025年安徽二级造价师备考资料包2025-11-21
- 2025年甘肃二级造价师备考资料:必备十页纸+练习题2025-11-21
- 免费下载!2025年新疆二级造价师考前3页纸2025-11-04