2005年二级建筑师考试真题(部分)3
更新时间:2009-10-19 15:27:29
来源:|0
浏览
收藏
一级建筑师报名、考试、查分时间 免费短信提醒
2004二级场地与建筑设计考题
建筑设计与场地设计……
第一题
场地设计总平面布置:
一山地(有水塘),退让用地红线4M……退让高压线25M……退让微波通信线20M……退让水塘边线12M……
退让道路边线9M……建筑物之间退让9M,布置一个25X25M的设备用房(一层),一个55X18M的办公研发楼(六层)……
一个60X30M的工厂……和一个50X50M的货车停车场以及一个不少于10辆的小车停车场……要求入口有入口广场……
标注必要的尺寸!……
第二题
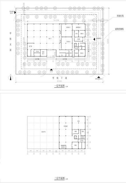
建筑设计 :某中学(700坐)食堂(建筑面积2300平方米)……一层(局部两层)建筑;
要求:
一层:
1;就餐大厅650平
洗手初36平
厕所36平(要求详细布置)
管理售卡36平
2;厨房
主食加工120
主库房36
副食加工120
副食粗加工72
冷库36
洗涤36
厨师休息36
厨师更衣24
厨师厕所18
二层:
特色餐厅240
雅间36
厕所36
厨房36
厨房120
作图要求:在地形图(试卷3上)上画出一层平面(和总图一起布置);
在地形图(试卷4上)上画出二层平面。


建筑设计答案!……理由:1,方正的造型30MX54M……便于提高手绘做图!……2,6MX6M的柱网便于面积计算!……因为要求中多是一些36平米,24平米,18平米的要求

场地设计答案!……没有什么理由!……就是把他说的东西都填进内张图里
建筑设计与场地设计……
第一题
场地设计总平面布置:
一山地(有水塘),退让用地红线4M……退让高压线25M……退让微波通信线20M……退让水塘边线12M……
退让道路边线9M……建筑物之间退让9M,布置一个25X25M的设备用房(一层),一个55X18M的办公研发楼(六层)……
一个60X30M的工厂……和一个50X50M的货车停车场以及一个不少于10辆的小车停车场……要求入口有入口广场……
标注必要的尺寸!……
第二题
建筑设计 :某中学(700坐)食堂(建筑面积2300平方米)……一层(局部两层)建筑;
要求:
一层:
1;就餐大厅650平
洗手初36平
厕所36平(要求详细布置)
管理售卡36平
2;厨房
主食加工120
主库房36
副食加工120
副食粗加工72
冷库36
洗涤36
厨师休息36
厨师更衣24
厨师厕所18
二层:
特色餐厅240
雅间36
厕所36
厨房36
厨房120
作图要求:在地形图(试卷3上)上画出一层平面(和总图一起布置);
在地形图(试卷4上)上画出二层平面。


建筑设计答案!……理由:1,方正的造型30MX54M……便于提高手绘做图!……2,6MX6M的柱网便于面积计算!……因为要求中多是一些36平米,24平米,18平米的要求

场地设计答案!……没有什么理由!……就是把他说的东西都填进内张图里
编辑推荐
最新资讯
- 2026一级建筑师《建筑经济、施工与设计业务管理》每周15题(2月第1周)2026-02-06
- 2026一级建筑师《建筑材料与构造》精华模拟题15题(1月更新)2026-02-02
- 2026年一级建筑师每日一练及答案解析汇总(1月23日)2026-01-23
- 2026年一级注册建筑师考试每日一练及答案解析(12月26日)2025-12-26
- 2026年一级注册建筑师考试每日一练及答案解析(12月23日)2025-12-23
- 2026年一级注册建筑师考试每日一练及答案解析(12月15日)2025-12-15
- 2026年注册一级建筑师考试每日一练及答案解析(12月8日)2025-12-08
- 2026年一级注册建筑师资格考试每日一练及答案解析(11月28日)2025-11-28
- 2026年一级注册建筑师考试每日一练及答案解析(11月24日)2025-11-24
- 2026年一级注册建筑师每日一练及答案解析(11月7日)2025-11-07