设计前期场地与建筑设计综合习题精选6
1在建筑初步设计阶段开始之前最先应取得下列哪一项资料( )。
A.项目建议书 B.工程地质报告 C.可行性研究报告 D.施工许可证
提示:基本建设程序中所提出的基本步骤,建筑初步设计文件的形成应根据可行性研究报告进行。因此,最先取得的资料应为可行性研究报告。
2关于场地管线布置,下列哪项不正确( )。
A.地下管线布置,宜按管线敷设深度,自建筑物向道路由浅到深排列
B.地下管线的相互位置发生矛盾时,自流的管线应当让有压力的管线
C.管线宜与建筑物或道路平行布置
D.主干管线应布置在靠近主要用户较多的一侧
提示:根据在总平面设计中,管线敷设发生矛盾时的处理原则:临时性让永久性的;管径小的让管径大的;可以弯曲的让不可弯曲的;新设计的让原有的;一般情况下,有压力的管道让自流管道;施工工程量小的让工程量大的管道。
3下列总平面布置设计原则中,何者正确( )。
A.高度低于4m的建筑物允许向道路上空自由排泄雨水
B.多层建筑的阳台允许向道路上空自由排泄雨水
C.建筑物和建筑突出物均不得向道路上空排泄雨水
D.除局部突出部分外,建筑物均不得向道路上空排泄雨水
提示:《民用建筑设计通则》规定:建筑物和建筑突出物均不得向道路上空排泄雨水。
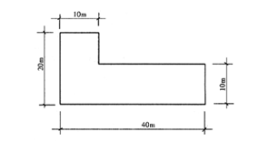
4民用建筑防火最大容许长度应符合规范要求,下面所示建筑物,其长度计算值应为( )m。
A.120 B.80 C.60 D.50

提示:建筑物的长度,系指建筑物各分段中线长度的总和。如遇有不规则的平面,采用各种不同量法的较大值。
5下列哪一项不是确定公共建筑通道宽度与长度的主要因素( )。
A.空间感受
B.功能需要
C.通道两侧门洞的数量
D.防火规定
提示:见《公共建筑设计原理》第30页,第二章第一节。门洞数量问题相对次要。
6住宅套型的功能空间通常由三部分组成,下列哪项应除外( )。
A.居住空间
B.厨卫空间
C.交通空间
D.储藏空间
提示:见《住宅建筑设计原理》第9页,第一章第二节。储藏空间已经不是住宅功能空间的必要部分,储藏功能可以由家具来提供。
7高层建筑内观众厅、会议厅等人员密集场所疏散口的设置,哪一条是错误的( )。
A.疏散出口最小净宽不应小于1.4m
B.疏散出口可设双向弹簧门
C.疏散出口的门内外1.4m范围内不应设踏步
D.疏散门不应设置门槛
提示:见《高层民用建筑设计防火规范》6.1.11, 门必须外开,不可用双向弹簧门。
8在计算人防工程防火分区面积时,溜冰馆的冰场、游泳馆的游泳池、射击馆的靶道区、保龄球馆的球道区等面积是否应计入防火分区面积( )。
A.应全部计入
B.应按1/2计入
C.应按1/3计入
D.可不计入
提示:见《人民防空工程设计防火规范》4.1.3。冰场、泳池是有水区域,而靶道、球道区域内基本无人停留,故可不计入防火分区面积。
9汽车库和修车库的每个防火分区内的人员安全出口不应少于2个。但符合下列哪两个条件之一时,可只设一个( )。
Ⅰ.同一时间的人数不超过25人;
Ⅱ.必须是地上车库;
Ⅲ. 库内停车位不超过50辆;
Ⅳ.建筑物耐火等级为一级
A.Ⅰ、Ⅲ
B.Ⅰ、Ⅳ
C.Ⅱ、Ⅲ
D.Ⅱ、Ⅳ
提示:见《车库防火规范》6.0.2。一个防火分区内同时间人数不超过25人,库内车位不超过50辆时,可以只设一个人员安全出口。
10关于住宅层高的规定,以下哪一条是正确的( )。
A.应等于2.8m
B.不宜大于2.8m
C.不应小于2.8m
D.没有明确规定
提示:见《住宅设计规范》3.6.1,注意新规范放宽了对住宅层高的限制。
11住宅厨房的操作面净长度应不小于( )m。
A.1.5
B.1.8
C.2.1
D.2.4
提示:见《住宅设计规范》3.3.3条。
12以下关于住宅公用楼梯设计的叙述,何者是不准确的( )。
A.楼梯踏步宽不应小于0.26m,踏步高度不应小于0.175m
B.楼梯梯段宽度不应小于1.00m,休息平台宽度不应小于梯段宽度
C.楼梯扶手高度不应小于0.90m,楼梯水平段栏杆长度大于0.50m时,其扶手高度不应小于1.05m
D.楼梯栏杆垂直杆件间净空不应大于0.11m
提示:《住宅设计规范》4.1.2、4.1.3、4.1.4条。1.00m宽的梯段仅适用于6层以下住宅,注意对休息平台宽度不应小于1.20m的规定。
13关于将幼儿生活用房设在地下室或半地下室的做法,规范规定是( )。
A.必要时可以
B.不宜
C.不应
D.严禁
提示:见《托儿所、幼儿园建筑设计规范》3.1.4条。幼儿生活用房严禁设在地下室或半地下室。
14小型车汽车库内直线坡道的最大纵向坡度是( )。
A.8%
B.10%
C.12%
D.15%
提示:见《汽车库建筑设计规范》4.1.7条。小型车汽车库室内直线坡道最大纵坡是15%。
15清代太和殿与唐代大明宫麟德殿体量之比为( )。
A.二者大小相近
B.为麟德殿的2倍
C.为麟德殿的3倍
D.只相当麟德殿的1/3
提示:唐代大明宫麟德殿面阔11间,进深17间,面积约为5 000m2。清代太和殿虽然面阔也是11间,但进深只相当麟德殿的1/3。
最新资讯
- 2026一级建筑师《建筑经济、施工与设计业务管理》每周15题(2月第1周)2026-02-06
- 2026一级建筑师《建筑材料与构造》精华模拟题15题(1月更新)2026-02-02
- 2026年一级建筑师每日一练及答案解析汇总(1月23日)2026-01-23
- 2026年一级注册建筑师考试每日一练及答案解析(12月26日)2025-12-26
- 2026年一级注册建筑师考试每日一练及答案解析(12月23日)2025-12-23
- 2026年一级注册建筑师考试每日一练及答案解析(12月15日)2025-12-15
- 2026年注册一级建筑师考试每日一练及答案解析(12月8日)2025-12-08
- 2026年一级注册建筑师资格考试每日一练及答案解析(11月28日)2025-11-28
- 2026年一级注册建筑师考试每日一练及答案解析(11月24日)2025-11-24
- 2026年一级注册建筑师每日一练及答案解析(11月7日)2025-11-07