土建工程实务辅导:结构施工图2
更新时间:2009-10-19 15:27:29
来源:|0
浏览
收藏
二级造价工程师报名、考试、查分时间 免费短信提醒
二、结构平面图
(一)楼层结构平面图
1.图示方法及内容
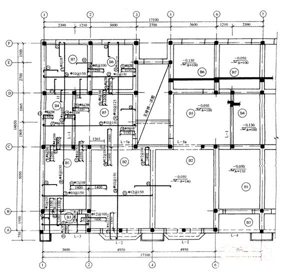
楼层结构平面图的图示方法是假想沿每层楼板上表面水平剖切并向下投影得到的剖面图。
楼层结构平面图主要表示板、梁、墙等的布置情况。对现浇板,一般要在图中反映板的配筋情况,若是预制板则反映板的选型、排列、数量等。梁的位置、编号以及板梁墙的连接或搭接情况等都要在图中反映出来。另外楼层结构平面图还反映圈梁,过梁,雨篷,阳台等的布置。若构造复杂时,也可单独成图。
2.识图举例
图1-2-8是某住宅单元地下室顶板结构平面图。本住宅有两个单元,因两个单元结构形式一样,配筋相同,所以只画一个单元。绘图比例l:50,图上被剖切到的构造柱被涂黑。板下梁在相应位置上注出(如L-l、L-2等),楼板按相同配筋、尺寸、板厚等条件分成7种板,用圆圈加编号的形式标出,楼板配筋用粗线按规定画法画出,一种板只画一块。因每块板的板厚、标高不尽相同,所以需要一一标出,并在高低变化处画出了重合断面图。楼梯间因习惯上需另画详图,这里仅画一条对角线并标注说明。楼梯结构图的详解单独说明。

?2008年全国建设工程造价员资格考试大纲![]()
?2009年造价员考前网上辅导招生简章
编辑推荐
上一篇:土建工程实务辅导:结构施工图1
下一篇:土建工程实务辅导:结构施工图3
最新资讯
- 2026年二级造价工程师考试大纲:考试说明、考试科目、考试题型、考试目的及考试内容2026-01-08
- 2026年二级造价工程师《建设工程计量与计价实务》考试大纲内容:土木建筑工程2026-01-07
- 2026年二级造价工程师《建设工程造价管理基础知识》考试大纲要求及内容2026-01-07
- 2026年度全国二级造价工程师职业资格考试大纲2026-01-06
- 考前速记!2025年甘肃省二级造价师考试《造价管理》公式汇总2025-12-01
- 考前5天!2025年安徽省二级造价工程师考前3页纸,抓紧背起来2025-12-01
- 2025年甘肃二级造价师考前3页纸~免费下载2025-11-30
- 免费下载!2025年安徽二级造价师备考资料包2025-11-21
- 2025年甘肃二级造价师备考资料:必备十页纸+练习题2025-11-21
- 免费下载!2025年新疆二级造价师考前3页纸2025-11-04