土建工程实务辅导:结构施工图3
更新时间:2009-10-19 15:27:29
来源:|0
浏览
收藏
二级造价工程师报名、考试、查分时间 免费短信提醒
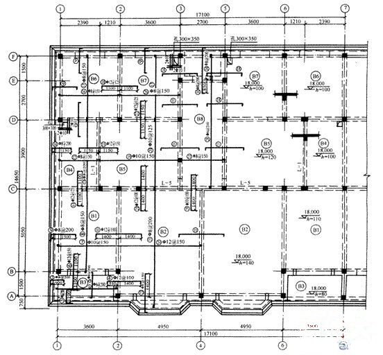
(二)屋顶结构平面图
其表达的内容基本与楼层结构平面图相同。但屋顶结构形式有时会有变化(如平屋顶、坡屋顶等),在图中要用适当的方法表示出来。
图1-2-9是某住宅单元屋顶结构平面图。绘图比例1:50,除四周反檐外其他结构线均为虚线(如墙、梁等)。楼板配筋与楼层结构平面图基本相同,只增加了楼梯间上部板的配筋。

?2008年全国建设工程造价员资格考试大纲![]()
?2009年造价员考前网上辅导招生简章
编辑推荐
上一篇:土建工程实务辅导:结构施工图2
下一篇:土建工程实务辅导:结构施工图4
最新资讯
- 2026年二级造价工程师考试大纲:考试说明、考试科目、考试题型、考试目的及考试内容2026-01-08
- 2026年二级造价工程师《建设工程计量与计价实务》考试大纲内容:土木建筑工程2026-01-07
- 2026年二级造价工程师《建设工程造价管理基础知识》考试大纲要求及内容2026-01-07
- 2026年度全国二级造价工程师职业资格考试大纲2026-01-06
- 考前速记!2025年甘肃省二级造价师考试《造价管理》公式汇总2025-12-01
- 考前5天!2025年安徽省二级造价工程师考前3页纸,抓紧背起来2025-12-01
- 2025年甘肃二级造价师考前3页纸~免费下载2025-11-30
- 免费下载!2025年安徽二级造价师备考资料包2025-11-21
- 2025年甘肃二级造价师备考资料:必备十页纸+练习题2025-11-21
- 免费下载!2025年新疆二级造价师考前3页纸2025-11-04